Contact met de makelaar

Deze woning is gevonden buiten ons eigen netwerk. Met de knop hieronder kom je direct bij de aanbieder terecht.

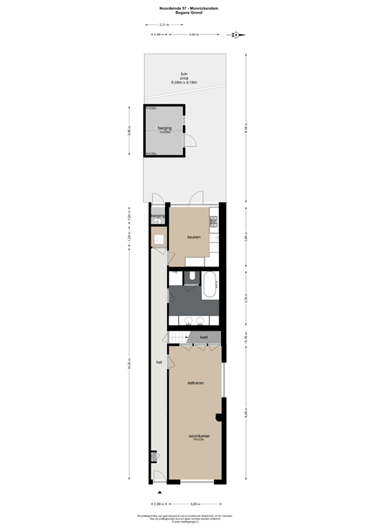
Noordeinde 57

Bekijk kaart
1141 AH Monnickendam (Monnickendam)
€ 635.000 k.k.
  • 112 m²
  • 5 kamers
  • 1885

Samenvatting

  • Deze woning wordt sinds 25 oktober 2025 aangeboden door Kopinsky Makelaardij;
  • De halfvrijstaande woning heeft een woonoppervlakte van 112 m² en beschikt over 5 kamers, waarvan 4 slaapkamers;
  • De woning is gebouwd In 1885 en ligt in de buurt Monnickendam in Monnickendam.

Beschrijving

Meer woninginformatie bekijken?

Log in of registreer gratis.

Overdracht

Vraagprijs
€ 635.000 k.k.
Aangeboden sinds
25-10-2025
Status
Beschikbaar
Beschikbaar
Per direct
Onderhoudsstaat
Zeer goed

Oppervlakte en inhoud

Woonoppervlakte
112 m²
Perceeloppervlakte
117 m²
Inhoud
480 m³

Bouw

Type woning
Huis
Soort woning
Halfvrijstaande woning, Eengezinswoning
Soort bouw
Bestaande bouw
Bouwjaar
1885

Indeling

Aantal kamers
5
Aantal slaapkamers
4
Aantal badkamers
1
Aantal woonlagen
2
Voorzieningen
Wasruimte

Buitenruimte

Balkon
Niet aanwezig
Tuin
Aanwezig (46 m², gelegen op het westen)
Tuinbeschrijving
achtertuin
Dakterras
Niet aanwezig

Energie

Verwarming
CV-ketel
Warm water
CV-ketel
Cv-ketel
Intergas (Gas, uit 2023, Eigendom)
Energielabel
D

Bergruimte

Schuur/Berging
Aanwezig

Parkeergelegenheid

Aanwezig
Ja
Soort parkeergelegenheid
Vergunning
Meld een probleem met deze woning
Contact met de makelaar Bel