Contact met de makelaar

Deze woning is gevonden buiten ons eigen netwerk. Met de knop hieronder kom je direct bij de aanbieder terecht.

Paulinelaan 7

Bekijk kaart
1399 VK Muiderberg (Muiderberg)
€ 1.195.000 k.k.
  • 180 m²
  • 8 kamers
  • 1959

Samenvatting

  • Deze woning wordt sinds 7 weken aangeboden door Vlaanderen Makelaardij BV;
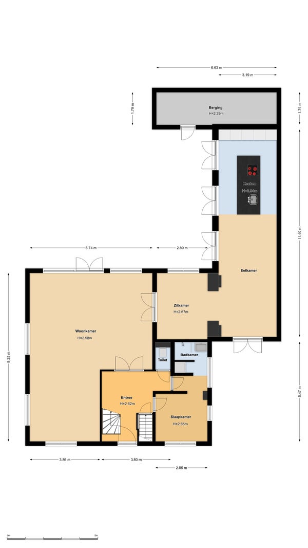
  • De vrijstaande woning heeft een woonoppervlakte van 180 m² en beschikt over 8 kamers, waarvan 3 slaapkamers;
  • De woning is gebouwd In 1959 en ligt in de buurt Muiderberg in Muiderberg.

Beschrijving

Meer woninginformatie bekijken?

Log in of registreer gratis.

Overdracht

Vraagprijs
€ 1.195.000 k.k.
Aangeboden sinds
05-09-2025
Status
Beschikbaar
Beschikbaar
In overleg
Onderhoudsstaat
Zeer goed

Oppervlakte en inhoud

Woonoppervlakte
180 m²
Perceeloppervlakte
419 m²
Inhoud
700 m³

Bouw

Type woning
Huis
Soort woning
Vrijstaande woning, Villa
Soort bouw
Bestaande bouw
Bouwjaar
1959

Indeling

Aantal kamers
8
Aantal slaapkamers
3
Aantal woonlagen
3

Buitenruimte

Balkon
Niet aanwezig
Tuin
Aanwezig
Tuinbeschrijving
achtertuin, voortuin, zijtuin, tuin rondom
Dakterras
Niet aanwezig

Energie

Energielabel
B

Parkeergelegenheid

Aanwezig
Ja
Soort parkeergelegenheid
Openbaar

Garage

Aanwezig
Nee
Meld een probleem met deze woning
Contact met de makelaar Bel