Contact met de makelaar

Deze woning is gevonden buiten ons eigen netwerk. Met de knop hieronder kom je direct bij de aanbieder terecht.

Nieuw

Prins Bernhardstraat 4

Bekijk kaart
2202 LH Noordwijk (Zeeheldenbuurt)
€ 785.000 k.k.
  • 160 m²
  • 7 kamers
  • 1957

Samenvatting

  • Deze woning wordt sinds 10 november 2025 aangeboden door Issac Makelaardij;
  • De tussenwoning heeft een woonoppervlakte van 160 m² en beschikt over 7 kamers, waarvan 5 slaapkamers;
  • De woning is gebouwd In 1957 en ligt in de buurt Zeeheldenbuurt in Noordwijk;
  • De woning beschikt onder andere over de volgende voorzieningen: Bad, Glasvezelaansluiting, Mechanische ventilatie, Douche, Dakraam, Bergruimte, Toilet.

Beschrijving

Meer woninginformatie bekijken?

Log in of registreer gratis.

Overdracht

Vraagprijs
€ 785.000 k.k.
Aangeboden sinds
10-11-2025
Status
Beschikbaar
Beschikbaar
In overleg
Onderhoudsstaat
Zeer goed

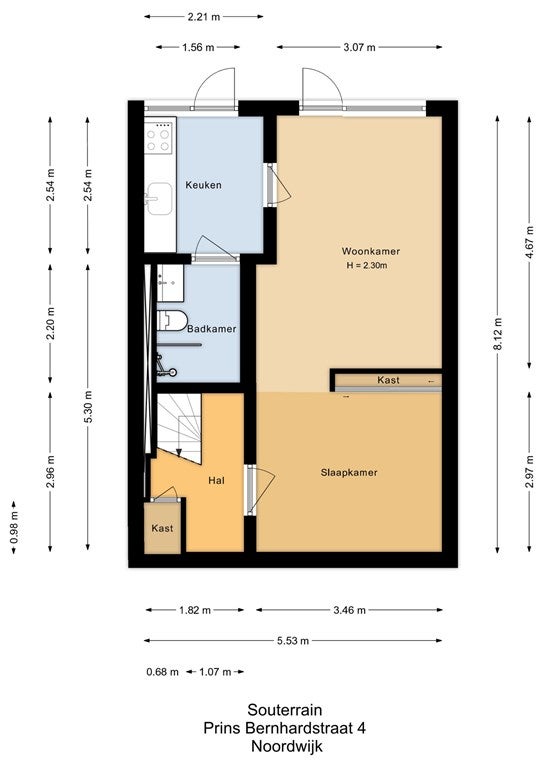
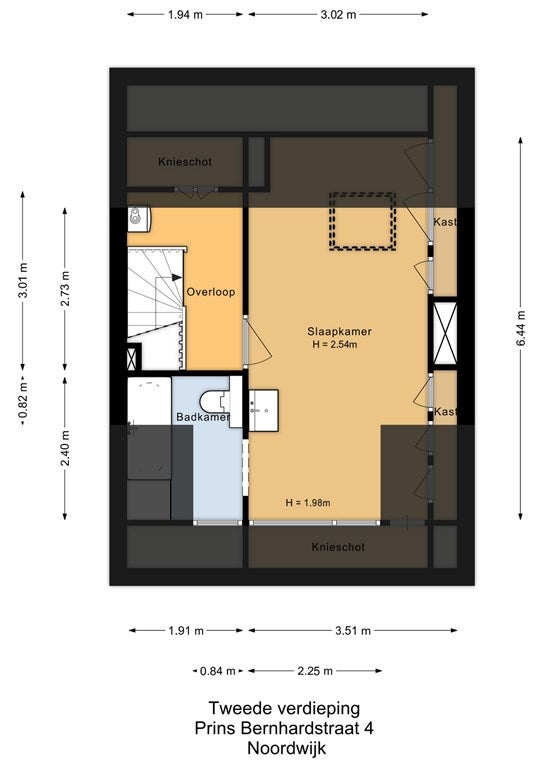
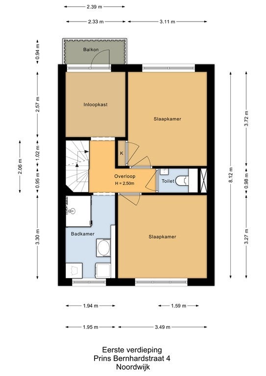
Oppervlakte en inhoud

Woonoppervlakte
160 m²
Perceeloppervlakte
142 m²
Inhoud
546 m³

Bouw

Type woning
Huis
Soort woning
Tussenwoning (rijtjeshuis), Eengezinswoning
Soort bouw
Bestaande bouw
Bouwjaar
1957
Ligging
  • Aan een rustige weg
  • In een woonwijk
  • Nabij het openbaar vervoer
  • Nabij een school

Indeling

Aantal kamers
7
Aantal slaapkamers
5
Aantal badkamers
3
Aantal woonlagen
4
Voorzieningen
  • Bad
  • Glasvezelaansluiting
  • Mechanische ventilatie
  • Douche
  • Dakraam
  • Bergruimte
  • Toilet

Buitenruimte

Balkon
Aanwezig
Tuin
Aanwezig (73 m², gelegen op het oosten)
Tuinbeschrijving
achtertuin
Dakterras
Niet aanwezig

Energie

Isolatie
Vloerisolatie, Dakisolatie
Verwarming
CV-ketel
Warm water
CV-ketel
Cv-ketel
Vaillant VHRNL25-30/5-5 (Gas, uit 2015, Eigendom)
Energielabel
E

Parkeergelegenheid

Aanwezig
Ja
Soort parkeergelegenheid
Openbaar
Meld een probleem met deze woning
Contact met de makelaar Bel