Contact met de makelaar

Deze woning is gevonden buiten ons eigen netwerk. Met de knop hieronder kom je direct bij de aanbieder terecht.

Middeloo 41

Bekijk kaart
1713 CN Obdam (Laan van Meerweijde en omgeving)
€ 375.000 k.k.
  • 104 m²
  • 4 kamers
  • 2010

Samenvatting

  • Deze woning wordt sinds 22 oktober 2025 aangeboden door Taams Makelaardij;
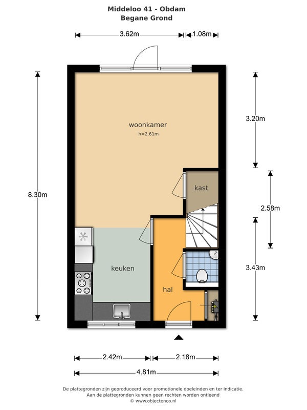
  • De tussenwoning heeft een woonoppervlakte van 104 m² en beschikt over 4 kamers, waarvan 2 slaapkamers;
  • De woning is gebouwd In 2010 en ligt in de buurt Laan van Meerweijde en omgeving in Obdam;
  • De woning beschikt onder andere over de volgende voorzieningen: Kabel TV, Mechanische ventilatie, Buitenzonwering, Toilet, Wasruimte.

Beschrijving

Meer woninginformatie bekijken?

Log in of registreer gratis.

Overdracht

Vraagprijs
€ 375.000 k.k.
Aangeboden sinds
22-10-2025
Status
Beschikbaar
Beschikbaar
In overleg
Onderhoudsstaat
Goed

Oppervlakte en inhoud

Woonoppervlakte
104 m²
Perceeloppervlakte
150 m²
Inhoud
380 m³

Bouw

Type woning
Huis
Soort woning
Tussenwoning (rijtjeshuis), Eengezinswoning
Soort bouw
Bestaande bouw
Bouwjaar
2010
Ligging
  • Aan een rustige weg
  • In een woonwijk

Indeling

Aantal kamers
4
Aantal slaapkamers
2
Aantal woonlagen
3
Voorzieningen
  • Kabel TV
  • Mechanische ventilatie
  • Buitenzonwering
  • Toilet
  • Wasruimte

Buitenruimte

Balkon
Niet aanwezig
Tuin
Aanwezig (65 m², gelegen op het oosten)
Tuinbeschrijving
achtertuin, voortuin
Dakterras
Niet aanwezig

Energie

Isolatie
Dubbele beglazing, Vloerisolatie, Dakisolatie, Muurisolatie
Verwarming
CV-ketel
Warm water
CV-ketel
Cv-ketel
Intergas (Gas, uit 2021, Eigendom)
Energielabel
A

Bergruimte

Schuur/Berging
Aanwezig
Omschrijving
Vrijstaand hout

Garage

Aanwezig
Nee
Meld een probleem met deze woning
Contact met de makelaar Bel