Contact met de makelaar

Deze woning is gevonden buiten ons eigen netwerk. Met de knop hieronder kom je direct bij de aanbieder terecht.

De Stille Wille 26

Bekijk kaart
5091 WB Oost West en Middelbeers (Verspreide huizen Spoordonk)
€ 550.000 k.k.
  • 127 m²
  • 4 kamers
  • 2017

Samenvatting

  • Deze woning wordt sinds 3+ maanden aangeboden door RE/MAX Optimus Makelaars;
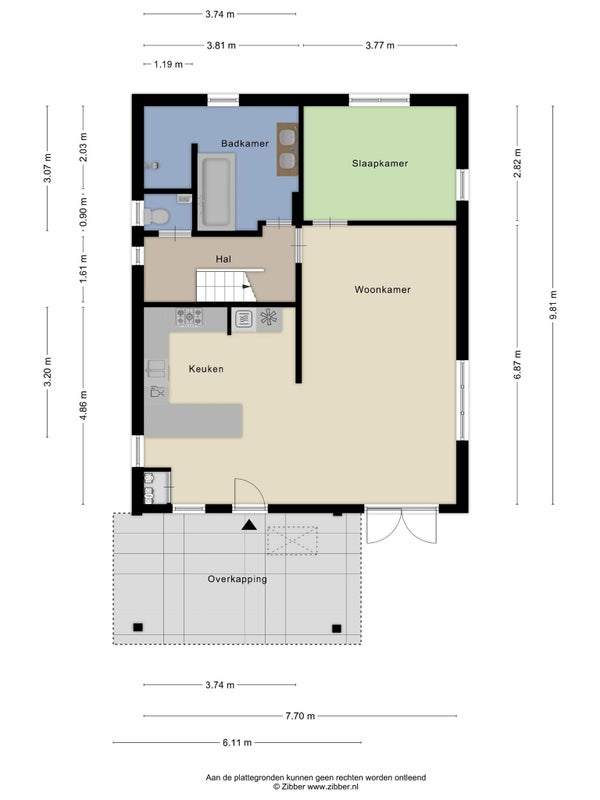
  • De vrijstaande woning heeft een woonoppervlakte van 127 m² en beschikt over 4 kamers, waarvan 3 slaapkamers;
  • De woning is gebouwd In 2017 en ligt in de buurt Verspreide huizen Spoordonk in Oost West en Middelbeers.

Beschrijving

Overdracht

Vraagprijs
€ 550.000 k.k.
Aangeboden sinds
07-05-2025
Status
Beschikbaar
Beschikbaar
In overleg
Onderhoudsstaat
Goed

Oppervlakte en inhoud

Woonoppervlakte
127 m²
Perceeloppervlakte
653 m²
Inhoud
477 m³

Bouw

Type woning
Huis
Soort woning
Vrijstaande woning, Bungalow, Semi-bungalow
Soort bouw
Bestaande bouw
Bouwjaar
2017

Indeling

Aantal kamers
4
Aantal slaapkamers
3
Aantal woonlagen
2

Buitenruimte

Balkon
Niet aanwezig
Tuin
Aanwezig
Tuinbeschrijving
tuin rondom
Dakterras
Niet aanwezig

Energie

Energielabel
C

Bergruimte

Schuur/Berging
Aanwezig
Omschrijving
Vrijstaand hout

Parkeergelegenheid

Aanwezig
Ja
Soort parkeergelegenheid
Op eigen terrein

Garage

Aanwezig
Nee
Meld een probleem met deze woning
Contact met de makelaar Bel