Contact met de makelaar

Deze woning is gevonden buiten ons eigen netwerk. Met de knop hieronder kom je direct bij de aanbieder terecht.

Weststraat 4

Bekijk kaart
4501 JG Oostburg (Oostburg)
€ 322.000 k.k.
  • 134 m²
  • 6 kamers
  • 1960

Samenvatting

  • Deze woning wordt sinds 3 maanden aangeboden door Harthoorn Taxaties / Makelaardij;
  • De eindwoning heeft een woonoppervlakte van 134 m² en beschikt over 6 kamers, waarvan 5 slaapkamers;
  • De woning is gebouwd In 1960 en ligt in de buurt Oostburg in Oostburg;
  • De woning beschikt onder andere over de volgende voorzieningen: Rookkanaal, Buitenzonwering, Rolluiken, Schuifdeuren, Zonnecollectoren, Toilet.

Beschrijving

Kom kijken naar deze eindwoning met inpandige garage aan de Weststraat 4.

De woning is gelegen nabij het centrum van Oostburg, de perfecte plek met ruimte, comfort, energiezuinig en alle voorzieningen op loopafstand.

Wat kun je verwachten?

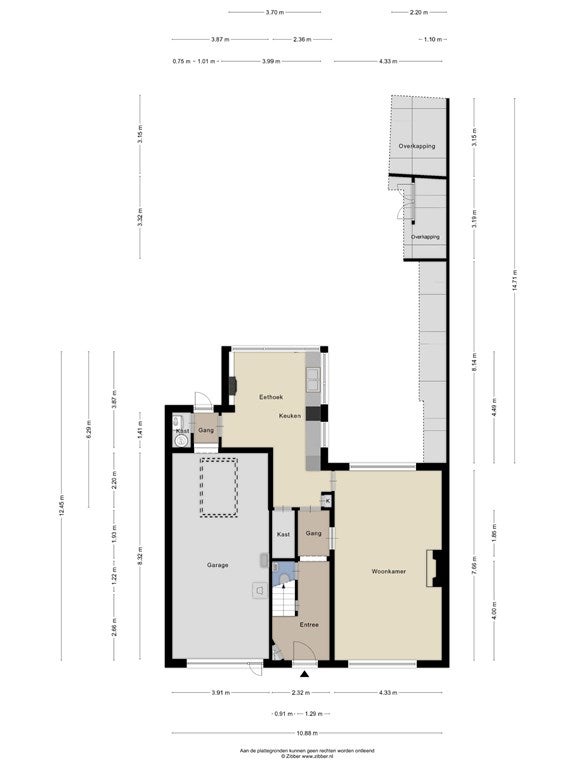
Bij binnenkomst in de gang ervaart u direct de sfeer van de woonkamer met houten vloer waar volop ruimte is voor een gezellige zit- en eethoek. De houtkachel is een extra sfeermaker. Achterin bevindt zich de dichte keuken met inbouwapparatuur met o.a de inductie-kookplaat. De keuken geeft uitzicht op de tuin met veel privacy en is dankzij de lichtkoepels aangenaam vertoeven om als woonkeuken te dienen. Van daaruit loopt u de inpandige garage in waar zich ook de wm-aansluiting bevindt.

Op de 1e verdieping treft u de overloop met drie royale slaapkamers en een inloopdressing. De badkamer is voorzien van een inloopdouche met wastafelmeubel en toilet.

De 2e verdieping is bereikbaar middels een vlizotrap en is in gebruik als bergzolder.

Bijzonderheden: vrijwel geheel voorzien van kunststof kozijnen, 14 zonnepanelen, zonnecollector met een 110 l boiler, verwarming en warm water middels Remeha Calenta van 2012, vloer van de bergzolder uitstekend geïsoleerd, meterkast heeft 7 groepen met aardlekschakelaars.

Overdracht

Vraagprijs
€ 322.000 k.k.
Aangeboden sinds
14-10-2025
Status
Beschikbaar
Beschikbaar
In overleg
Onderhoudsstaat
Goed

Oppervlakte en inhoud

Woonoppervlakte
134 m²
Perceeloppervlakte
340 m²
Inhoud
602 m³

Bouw

Type woning
Huis
Soort woning
Eindwoning, Eengezinswoning
Soort bouw
Bestaande bouw
Bouwjaar
1960
Ligging
In het centrum

Indeling

Aantal kamers
6
Aantal slaapkamers
5
Aantal badkamers
1
Aantal woonlagen
2
Voorzieningen
  • Rookkanaal
  • Buitenzonwering
  • Rolluiken
  • Schuifdeuren
  • Zonnecollectoren
  • Toilet

Buitenruimte

Balkon
Niet aanwezig
Tuin
Aanwezig (209 m², gelegen op het westen)
Tuinbeschrijving
achtertuin
Dakterras
Niet aanwezig

Energie

Verwarming
CV-ketel, Houtkachel
Warm water
CV-ketel, Zonnecollector
Cv-ketel
Remeha Calenta (Gas, uit 2012, Eigendom)

Parkeergelegenheid

Aanwezig
Ja
Soort parkeergelegenheid
Openbaar
Meld een probleem met deze woning