Contact met de makelaar

Deze woning is gevonden buiten ons eigen netwerk. Met de knop hieronder kom je direct bij de aanbieder terecht.

Nieuw

Lavendelhof 43

Bekijk kaart
4907 AR Oosterhout (Kruidenbuurt)
€ 445.000 k.k.
  • 135 m²
  • 5 kamers
  • 1974

Samenvatting

  • Deze woning wordt sinds 8 oktober 2025 aangeboden door ERA makelaars Oosterhout;
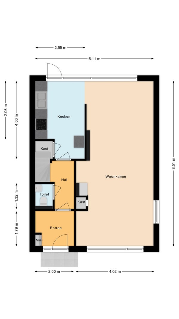
  • De eindwoning heeft een woonoppervlakte van 135 m² en beschikt over 5 kamers, waarvan 4 slaapkamers;
  • De woning is gebouwd In 1974 en ligt in de buurt Kruidenbuurt in Oosterhout;
  • De woning beschikt onder andere over de volgende voorzieningen: Bad, Douche, Bergruimte, Toilet, Wasruimte.

Beschrijving

Overdracht

Vraagprijs
€ 445.000 k.k.
Aangeboden sinds
08-10-2025
Status
Beschikbaar
Beschikbaar
In overleg
Onderhoudsstaat
Goed

Oppervlakte en inhoud

Woonoppervlakte
135 m²
Perceeloppervlakte
164 m²
Inhoud
461 m³

Bouw

Type woning
Huis
Soort woning
Eindwoning, Eengezinswoning
Soort bouw
Bestaande bouw
Bouwjaar
1974
Ligging
In een woonwijk

Indeling

Aantal kamers
5
Aantal slaapkamers
4
Aantal badkamers
1
Aantal woonlagen
3
Voorzieningen
  • Bad
  • Douche
  • Bergruimte
  • Toilet
  • Wasruimte

Buitenruimte

Balkon
Niet aanwezig
Tuin
Aanwezig
Tuinbeschrijving
achtertuin, voortuin
Dakterras
Niet aanwezig

Energie

Isolatie
Dubbele beglazing, Dakisolatie, Muurisolatie
Verwarming
CV-ketel, Houtkachel
Warm water
CV-ketel
Energielabel
C

Parkeergelegenheid

Aanwezig
Ja
Soort parkeergelegenheid
Openbaar

Garage

Aanwezig
Ja
Omschrijving
Vrijstaand steen
Meld een probleem met deze woning
Contact met de makelaar Bel