- 121 m²
- 5 kamers
- 1925
Samenvatting
- Deze woning wordt sinds 6 weken aangeboden door KUIN MAKELAARDIJ, actief en gedreven;
- De tussenwoning heeft een woonoppervlakte van 121 m² en beschikt over 5 kamers, waarvan 3 slaapkamers;
- De woning is gebouwd In 1925 en ligt in de buurt Oostwoud Centrum in Oostwoud.
Beschrijving
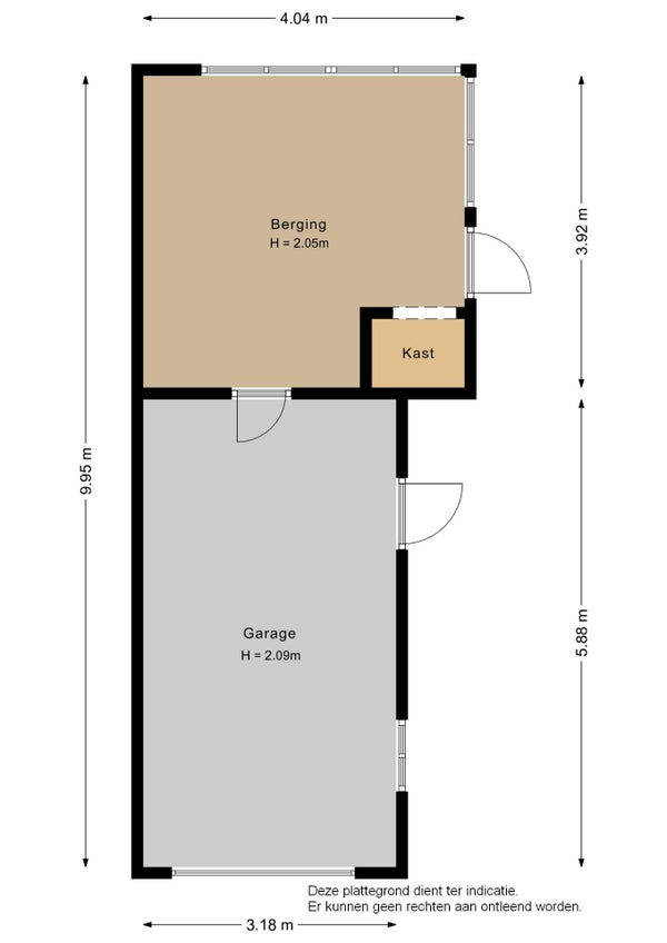
Deze vrijstaande woning biedt op een perceel van 784 m² een overvloed aan ruimte, zowel binnen als buiten. Het huis is aan de achterzijde gelegen aan vaarwater en beschikt over een tuin vol mogelijkheden, met fruitbomen, ruimte voor een moestuin en diverse bergingen. Een eigen oprijpad leidt naar de garage met extra opslagmogelijkheden. De karakteristieke voorzijde verwelkomt je in een hal die toegang biedt tot de ruime woonkamer met hoge plafonds en authentieke glas-in-loodramen. De eetkamer met openslaande deuren naar de serre zorgt voor een lichte sfeer. De keuken is eenvoudig van opzet en voorzien van vaste kasten. Op de eerste verdieping vind je een ruime overloop met drie goed bemeten slaapkamers. De volledig betegelde badkamer beschikt over een ligbad en wastafel. Deze woning wacht op iemand die het karakter weet te waarderen.
Overdracht
- Vraagprijs
- € 480.000 k.k.
- Aangeboden sinds
- 17-11-2025
- Status
- Beschikbaar
- Beschikbaar
- In overleg
Oppervlakte en inhoud
- Woonoppervlakte
- 121 m²
- Perceeloppervlakte
- 784 m²
Bouw
- Type woning
- Huis
- Soort woning
- Tussenwoning (rijtjeshuis), Eengezinswoning
- Soort bouw
- Bestaande bouw
- Bouwjaar
- 1925
Indeling
- Aantal kamers
- 5
- Aantal slaapkamers
- 3
- Aantal badkamers
- 1
Buitenruimte
- Dakterras
- Niet aanwezig
Energie
- Energielabel
- C