Contact met de makelaar

Deze woning is gevonden buiten ons eigen netwerk. Met de knop hieronder kom je direct bij de aanbieder terecht.

Nieuw

Berkenlaan 7

Bekijk kaart
2969 CA Oud-Alblas (Oud-Alblas-Dorp)
€ 365.000 k.k.
  • 116 m²
  • 5 kamers
  • 1978

Samenvatting

  • Deze woning wordt sinds 17 februari 2026 aangeboden door Kool & Van den Toren Makelaardij;
  • De tussenwoning heeft een woonoppervlakte van 116 m² en beschikt over 5 kamers, waarvan 4 slaapkamers;
  • De woning is gebouwd In 1978 en ligt in de buurt Oud-Alblas-Dorp in Oud-Alblas.

Beschrijving

Omschrijving Welkom aan de Berkenlaan 7: een fijne plek om te wonen in Oud-Alblas.

Kom kijken bij deze prettige en ruime gezinswoning!

Deze ruime hoekwoning is gelegen in een rustige en groene woonwijk. Aan de voorzijde een rustige zijstraat met ruime parkeergelegenheid.

Achter een diepe, zonnige tuin op het westen: tot in de avond genieten van de zon.
De tuin is achterom bereikbaar en er is een stenen schuur en een veranda: een heerlijke plek om te ontspannen en te genieten van rust en privacy.

De woning is altijd netjes bewoond en onderhouden. Een fijne woning die je naar eigen idee en smaak kan moderniseren en verduurzamen en er jouw droomwoning van maken.

  • Energielabel C
  • Degelijke bouwkundige kwaliteit
  • Kindvriendelijke buurt
  • Basisschool op loopafstand

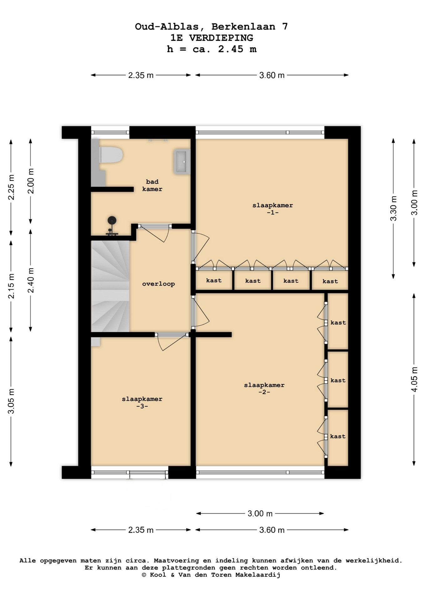
De plattegronden geven inzicht in de verschillende ruimtes en gebruiksmogelijkheden.

De omgeving:
Het dorpje Oud-Alblas is één van de meest westelijk gelegen dorpen van gemeente Molenlanden in De Alblasserwaard en is centraal gelegen. Wonen in Oud-Alblas betekent wonen in de rust en ruimte van het polderlandschap, maar ook centraal wonen, namelijk ca. 25 autominuten van het centrum van Rotterdam en ca. 20 autominuten van Dordrecht en Gorinchem.
De basisschool is op loopafstand en iedere week is er in de Schoolstraat een markt met bakker, groenteman e.d.

Alle dagelijkse voorzieningen, winkels, middelbare scholen, sportpark e.d. zijn op 10 minuten afstand in Alblasserdam en Papendrecht te vinden.

Bouwjaar ca. 1978
Woonoppervlakte ca. 116 m²
Perceeloppervlakte 156 m²

Nieuwsgiering geworden? Kom de sfeer zelf ervaren en laat je verrassen, maak snel een afspraak voor een vrijblijvende bezichtiging of meer informatie!
Je kunt ons bellen, e-mailen of appen. Bezichtigen is op afspraak zowel tijdens kantooruren of op zaterdag mogelijk, van harte welkom!

INDELING (zie ook de plattegronden)

BEGANE GROND / h = ca. 2.65 m
Hal met toilet, meterkast, trapopgang en trapkast
Woonkamer : 7.70 x 3.60 m
Open keuken : 3.00 x 2.35 m, voorzien van gasfornuis (5-pits) met elektrische oven (SMEG), afzuigkap en koel-vriescombinatie

1E VERDIEPING / h = ca. 2.45 m
Overloop
Slaapkamer -1- : 3.60 x 3.00 m, met vaste kasten
Slaapkamer -2- : 4.05 x 3.00 m, met vaste kasten
Slaapkamer -3- : 3.05 x 2.35 m
Badkamer : 2.35 x 2.25/2.00 m, (2011) met wastafel, 2e toilet en douche

2E VERDIEPING / h = ca. 2.55 m
Overloop, C.V.-ruimte, wasruimte
Slaapkamer -4- : 3.60 x 3.15 m, met zijbergingen en dak- en zijraam

STENEN SCHUUR : 3.85 x 2.40 m / h = ca. 2.20 m, met betonnen vloer en voorzien van elektra, dakbedekking is vernieuwd in 2009

VERANDA : 2.80 x 1.85 m

DIVERSEN

  • Energielabel C
  • CV-installatie: Intergas HRE 36/30 CW5 / bouwjaar ca. 2016 / onderhoud 2025
  • Close-in boiler keuken (voor warm water)
  • Spouwmuurisolatie (2023) / schelpen kruipruimte (2000)
  • Begane grond, 1e verdieping en 2e verdieping: betonnen vloeren
  • Grotendeels hardhouten kozijnen met dubbele beglazing (m.u.v. toiletraampje)
  • Rookmelders aanwezig
  • Oplevering in overleg
  • Oudere woningclausule van toepassing

Alle maten zijn circa.
Deze informatie is vrijblijvend. Bezichtiging na afspraak met de makelaar.
Indeling en aanduidingen op tekeningen en in omschrijving e.d. zijn indicatief.
De koopovereenkomst komt pas tot stand nadat beide partijen de koopakte hebben ondertekend.

Status Beschikbaar Vraagprijs € 365.000,- kosten koper Prijs per m² € 3.146,55 Aanvaarding in overleg Soort object Woonhuis Soort woning Eengezinswoning Type woning Eindwoning Kwaliteit woning Normaal Bouwjaar 1978 Bouwvorm Bestaande bouw Ligging Aan rustige weg en in woonwijk Woonoppervlakte 116 m² Woonkameroppervlakte 28 m² Perceeloppervlakte 156 m² Externe bergruimte 9 m² Inhoud 360 m³ Aantal kamers 5 Aantal slaapkamers 4 Aantal badkamers 1 Badkamer Voorzieningen Wastafel, Douche, Toilet Aantal woonlagen 3 woonlagen Voorzieningen Natuurlijke ventilatie Energieklasse C Energie einddatum 16-01-2036 Verwarming C.V.-Ketel Warmwater C.V.-Ketel en elektrische boiler eigendom C.V.-Ketel Gas Combiketel uit 2016, eigendom Tuin Achtertuin en voortuin Hoofdtuin Achtertuin Oppervlakte hoofdtuin 64 m² (9.9 m bij 6.5 m) Ligging hoofdtuin West Achterom Ja Kwaliteit tuin Verzorgd Schuur / Berging Vrijstaand steen Voorzien van elektra | Parkeerfaciliteiten | Openbaar parkeren | Soort dak | Zadeldak | Materiaal | Pannen | Permanente bewoning | Onderhoud binnen | Redelijk tot goed | Onderhoud buiten | Huidig gebruik | Woonruimte | Huidige bestemming | Gemeente | Oud-Alblas | Sectie | Perceelnummer | 263 | Oppervlakte | Eigendomssituatie | Volle eigendom

Overdracht

Vraagprijs
€ 365.000 k.k.
Prijs per m²
€ 3.147
Aangeboden sinds
17-02-2026
Status
Beschikbaar
Beschikbaar
Per direct

Oppervlakte en inhoud

Woonoppervlakte
116 m²
Perceeloppervlakte
156 m²

Bouw

Type woning
Huis
Soort woning
Tussenwoning (rijtjeshuis), Eengezinswoning
Soort bouw
Bestaande bouw
Bouwjaar
1978

Indeling

Aantal kamers
5
Aantal slaapkamers
4
Aantal badkamers
1

Buitenruimte

Dakterras
Niet aanwezig

Energie

Energielabel
C
Meld een probleem met deze woning