- 117 m²
- 5 kamers
- 2017
Samenvatting
- Deze woning wordt sinds 23 oktober 2025 aangeboden door Immobilia Real Estate;
- De hoekwoning heeft een woonoppervlakte van 117 m² en beschikt over 5 kamers, waarvan 4 slaapkamers;
- De woning is gebouwd In 2017 en ligt in de buurt Keijzershof Boszoom in Pijnacker;
- De woning beschikt onder andere over de volgende voorzieningen: Glasvezelaansluiting, Douche, Bergruimte, Toilet, Wasruimte.
Beschrijving
Meer woninginformatie bekijken?
Log in of registreer gratis.
Overdracht
- Vraagprijs
- € 625.000 k.k.
- Aangeboden sinds
- 23-10-2025
- Status
- Beschikbaar
- Beschikbaar
- In overleg
- Onderhoudsstaat
- Goed
Oppervlakte en inhoud
- Woonoppervlakte
- 117 m²
- Perceeloppervlakte
- 145 m²
- Inhoud
- 427 m³
Bouw
- Type woning
- Huis
- Soort woning
- Hoekwoning, Eengezinswoning
- Soort bouw
- Bestaande bouw
- Bouwjaar
- 2017
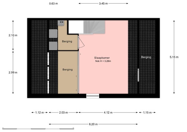
Indeling
- Aantal kamers
- 5
- Aantal slaapkamers
- 4
- Aantal badkamers
- 1
- Aantal woonlagen
- 3
- Voorzieningen
-
- Glasvezelaansluiting
- Douche
- Bergruimte
- Toilet
- Wasruimte
Buitenruimte
- Balkon
- Niet aanwezig
- Tuin
- Aanwezig (58 m², gelegen op het noordoosten)
- Tuinbeschrijving
- achtertuin, voortuin, zijtuin
- Dakterras
- Niet aanwezig
Energie
- Isolatie
- Dubbele beglazing, Vloerisolatie, Dakisolatie, Muurisolatie
- Verwarming
- CV-ketel
- Warm water
- CV-ketel
- Cv-ketel
- Intergas Kombi Kompakt HRE 28/24A (Gas, uit 2017, Eigendom)
- Energielabel
- A
Bergruimte
- Schuur/Berging
- Aanwezig
- Omschrijving
- Vrijstaand hout
Parkeergelegenheid
- Aanwezig
- Ja
- Soort parkeergelegenheid
- Openbaar
Garage
- Aanwezig
- Ja
- Omschrijving
- Parkeerplaats