Contact met de makelaar

Deze woning is gevonden buiten ons eigen netwerk. Met de knop hieronder kom je direct bij de aanbieder terecht.

Nieuw

Port Saidweg 49

Bekijk kaart
1448 MS Purmerend (Afrika)
€ 875.000 k.k.
  • 172 m²
  • 7 kamers
  • 2003

Samenvatting

  • Deze woning wordt sinds 29 januari 2026 aangeboden door Bastiaan Makelaardij;
  • De tussenwoning heeft een woonoppervlakte van 172 m² en beschikt over 7 kamers, waarvan 6 slaapkamers;
  • De woning is gebouwd In 2003 en ligt in de buurt Afrika in Purmerend.

Beschrijving

Welkom in deze luxe vrijstaande woning aan de rand van de woonwijk Weidevenne in Purmerend. Deze woning van 188 m² biedt een comfortabel woonklimaat en is gebouwd in 2003. Omgeven door natuur en water, geniet u van een rustige omgeving met alle benodigde voorzieningen dichtbij.

Bij binnenkomst valt de royale woonkamer met veel natuurlijk licht op, terwijl de open keuken modern en uitnodigend is voor gezellige etentjes. Op de eerste verdieping bevinden zich vijf slaapkamers en een luxe badkamer met een inloopdouche. Daarnaast is er een vliering aanwezig voor extra opbergruimte.

De woning beschikt over een energieklasse A, met voorzieningen zoals stadsverwarming, zonnepanelen en airconditioning. De rondom aangelegde tuin en parkeerfaciliteiten op eigen terrein maken het geheel compleet. Dit is een unieke kans om luxe en natuur eenvoudig te combineren.

Overdracht

Vraagprijs
€ 875.000 k.k.
Aangeboden sinds
29-01-2026
Status
Beschikbaar
Beschikbaar
Per direct

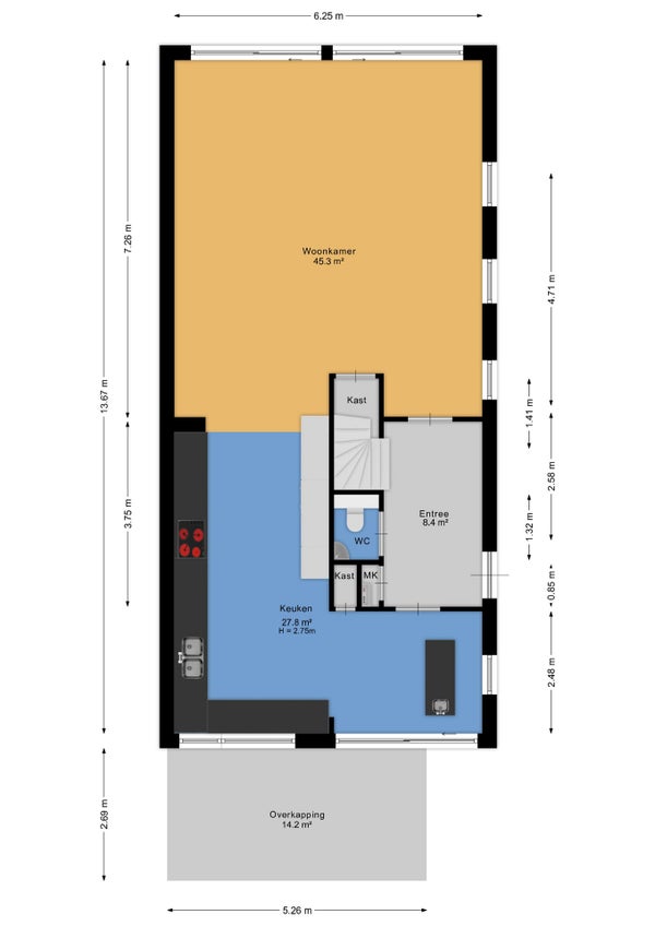
Oppervlakte en inhoud

Woonoppervlakte
172 m²
Perceeloppervlakte
290 m²

Bouw

Type woning
Huis
Soort woning
Tussenwoning (rijtjeshuis), Eengezinswoning
Soort bouw
Bestaande bouw
Bouwjaar
2003

Indeling

Aantal kamers
7
Aantal slaapkamers
6
Aantal badkamers
1

Buitenruimte

Dakterras
Niet aanwezig

Energie

Energielabel
A
Meld een probleem met deze woning