Contact met de makelaar

Deze woning is gevonden buiten ons eigen netwerk. Met de knop hieronder kom je direct bij de aanbieder terecht.

Nieuw

van Bleiswijkhof 10

Bekijk kaart
5121 HG Rijen (Vijf Eiken)
€ 375.000 k.k.
  • 128 m²
  • 5 kamers
  • 1970

Samenvatting

  • Deze woning wordt sinds 20 oktober 2025 aangeboden door Roland Jansen Makelaars;
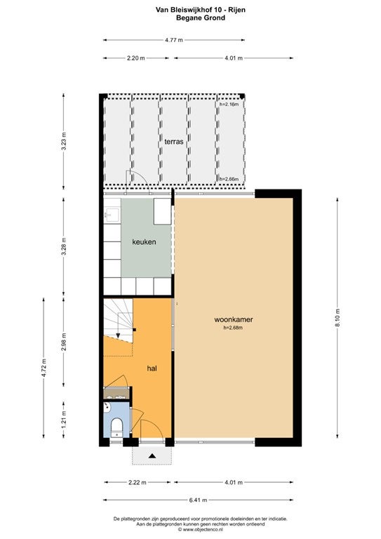
  • De hoekwoning heeft een woonoppervlakte van 128 m² en beschikt over 5 kamers, waarvan 4 slaapkamers;
  • De woning is gebouwd In 1970 en ligt in de buurt Vijf Eiken in Rijen;
  • De woning beschikt onder andere over de volgende voorzieningen: Airconditioning, Bad, Glasvezelaansluiting, Douche, Dakraam, Toilet.

Beschrijving

Meer woninginformatie bekijken?

Log in of registreer gratis.

Overdracht

Vraagprijs
€ 375.000 k.k.
Aangeboden sinds
20-10-2025
Status
Beschikbaar
Beschikbaar
In overleg
Onderhoudsstaat
Goed

Oppervlakte en inhoud

Woonoppervlakte
128 m²
Perceeloppervlakte
242 m²
Inhoud
453 m³

Bouw

Type woning
Huis
Soort woning
Hoekwoning, Eengezinswoning
Soort bouw
Bestaande bouw
Bouwjaar
1970
Ligging
  • Aan een rustige weg
  • In bosrijke omgeving
  • Nabij een school

Indeling

Aantal kamers
5
Aantal slaapkamers
4
Aantal badkamers
1
Aantal woonlagen
3
Voorzieningen
  • Airconditioning
  • Bad
  • Glasvezelaansluiting
  • Douche
  • Dakraam
  • Toilet

Buitenruimte

Balkon
Niet aanwezig
Tuin
Aanwezig (123 m², gelegen op het zuidoosten)
Tuinbeschrijving
achtertuin
Dakterras
Niet aanwezig

Energie

Isolatie
Dubbele beglazing, Volledig geïsoleerd
Verwarming
CV-ketel
Warm water
CV-ketel
Cv-ketel
Intergas (Gas, uit 2017, Gehuurd)
Energielabel
C

Bergruimte

Schuur/Berging
Aanwezig

Parkeergelegenheid

Aanwezig
Ja
Soort parkeergelegenheid
Openbaar
Meld een probleem met deze woning
Contact met de makelaar Bel