Contact met de makelaar

Deze woning is gevonden buiten ons eigen netwerk. Met de knop hieronder kom je direct bij de aanbieder terecht.

Nieuw

Jan Mennenstraat 18

Bekijk kaart
6088 HX Roggel (Kern Roggel)
€ 385.000 k.k.
  • 122 m²
  • 12 kamers
  • 1994

Samenvatting

  • Deze woning wordt sinds 15 oktober 2025 aangeboden door Kierkels & Hensen Vastgoed;
  • De geschakelde woning heeft een woonoppervlakte van 122 m² en beschikt over 12 kamers, waarvan 3 slaapkamers;
  • De woning is gebouwd In 1994 en ligt in de buurt Kern Roggel in Roggel;
  • De woning beschikt onder andere over de volgende voorzieningen: Mechanische ventilatie, Rolluiken, Douche, Dakraam, Toilet.

Beschrijving

Overdracht

Vraagprijs
€ 385.000 k.k.
Aangeboden sinds
15-10-2025
Status
Beschikbaar
Beschikbaar
Per direct
Bijzonderheden
Mindervalide woning, Seniorenwoning
Onderhoudsstaat
Goed

Oppervlakte en inhoud

Woonoppervlakte
122 m²
Perceeloppervlakte
219 m²
Inhoud
530 m³

Bouw

Type woning
Huis
Soort woning
Geschakelde woning, Eengezinswoning
Soort bouw
Bestaande bouw
Bouwjaar
1994
Ligging
  • Aan een rustige weg
  • In een woonwijk
  • Landelijk gebied
  • Vrij uitzicht

Indeling

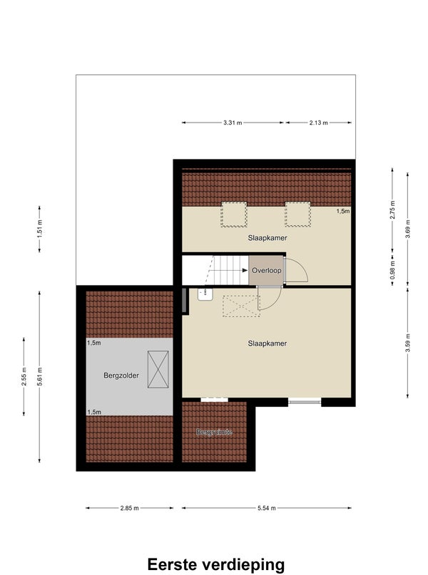
Aantal kamers
12
Aantal slaapkamers
3
Aantal badkamers
1
Aantal woonlagen
3
Voorzieningen
  • Mechanische ventilatie
  • Rolluiken
  • Douche
  • Dakraam
  • Toilet

Buitenruimte

Balkon
Niet aanwezig
Tuin
Aanwezig (62 m², gelegen op het zuidwesten)
Tuinbeschrijving
achtertuin, voortuin
Dakterras
Niet aanwezig

Energie

Isolatie
Dubbele beglazing, Vloerisolatie, Dakisolatie, Muurisolatie
Verwarming
CV-ketel
Warm water
CV-ketel
Cv-ketel
Nefit HRC25/CW4 (Gas, uit 2015, Eigendom)
Energielabel
B

Bergruimte

Schuur/Berging
Aanwezig
Omschrijving
Vrijstaand hout

Parkeergelegenheid

Aanwezig
Ja
Soort parkeergelegenheid
Openbaar

Garage

Aanwezig
Ja
Omschrijving
Inpandig
Meld een probleem met deze woning
Contact met de makelaar Bel