Contact met de makelaar

Deze woning is gevonden buiten ons eigen netwerk. Met de knop hieronder kom je direct bij de aanbieder terecht.

Nieuw

Elisadonk 253

Bekijk kaart
4707 ES Roosendaal (Langdonk-Oost)
€ 350.000 k.k.
  • 124 m²
  • 5 kamers
  • 1972

Samenvatting

  • Deze woning wordt sinds 3 oktober 2025 aangeboden door Rademakers Makelaardij;
  • De tussenwoning heeft een woonoppervlakte van 124 m² en beschikt over 5 kamers, waarvan 4 slaapkamers;
  • De woning is gebouwd In 1972 en ligt in de buurt Langdonk-Oost in Roosendaal;
  • De woning beschikt onder andere over de volgende voorzieningen: Bad, Kabel TV, Glasvezelaansluiting, Internetaansluiting, Rolluiken, Douche, Schuifdeuren, Bergruimte, Toilet.

Beschrijving

Overdracht

Vraagprijs
€ 350.000 k.k.
Aangeboden sinds
03-10-2025
Status
Beschikbaar
Beschikbaar
In overleg
Onderhoudsstaat
Zeer goed

Oppervlakte en inhoud

Woonoppervlakte
124 m²
Perceeloppervlakte
186 m²
Inhoud
436 m³

Bouw

Type woning
Huis
Soort woning
Tussenwoning (rijtjeshuis), Eengezinswoning
Soort bouw
Bestaande bouw
Bouwjaar
1972
Ligging
In een woonwijk

Indeling

Aantal kamers
5
Aantal slaapkamers
4
Aantal badkamers
1
Aantal woonlagen
3
Voorzieningen
  • Bad
  • Kabel TV
  • Glasvezelaansluiting
  • Internetaansluiting
  • Rolluiken
  • Douche
  • Schuifdeuren
  • Bergruimte
  • Toilet

Buitenruimte

Balkon
Niet aanwezig
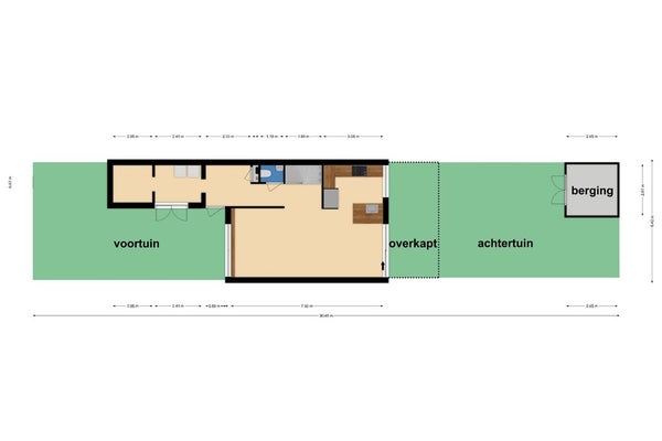
Tuin
Aanwezig (64 m², gelegen op het oosten)
Tuinbeschrijving
achtertuin
Dakterras
Niet aanwezig

Energie

Isolatie
Spouwmuurisolatie, Dubbele beglazing, Vloerisolatie, Dakisolatie, Muurisolatie
Verwarming
CV-ketel, Electrische verwarming, Gedeeltelijke vloerverwarming
Warm water
CV-ketel
Cv-ketel
Intergas hre (Gas, uit 2023, Gehuurd)
Energielabel
B

Bergruimte

Schuur/Berging
Aanwezig

Parkeergelegenheid

Aanwezig
Ja
Soort parkeergelegenheid
Openbaar
Meld een probleem met deze woning
Contact met de makelaar Bel