Contact met de makelaar

Deze woning is gevonden buiten ons eigen netwerk. Met de knop hieronder kom je direct bij de aanbieder terecht.

Onder bod

Grootmajoorstraat 4

Bekijk kaart
4551 BE Sas van Gent (Kern Sas van Gent)
€ 349.750 k.k.
  • 151 m²
  • 4 kamers
  • 1925

Samenvatting

  • Deze woning wordt sinds 7 weken aangeboden door Wooncoach Terneuzen;
  • De tussenwoning heeft een woonoppervlakte van 151 m² en beschikt over 4 kamers, waarvan 3 slaapkamers;
  • De woning is gebouwd In 1925 en ligt in de buurt Kern Sas van Gent in Sas van Gent;
  • De woning beschikt onder andere over de volgende voorzieningen: Open haard, Douche, Dakraam, Toilet, Wasruimte.

Beschrijving

Grootmajoorstraat 4 te Sas van Gent

In een rustige straat, met een gezellige bakker om de hoek, staat deze verrassend ruime en volledig gemoderniseerde woning met energielabel A. Sinds de aankoop is het huis grondig gerenoveerd en met veel zorg afgewerkt, waardoor je hier direct kunt genieten van hedendaags wooncomfort. De ruime en fraai aangelegde tuin vormt een absoluut hoogtepunt: een groene oase met optimale privacy, een sfeervolle buitenkeuken en een mooie vijver, ideaal voor lange zomerdagen en ontspannen momenten buiten. Daarnaast is er een fijne buitendouche met warm en koud water, perfect na het tuinieren of op warme dagen. Ook staat er een prachtige hottub in de tuin, die desgewenst optioneel ter overname is. Via de openslaande deuren vanuit de woonkamer loopt binnen naadloos over in buiten, wat het wooncomfort nog verder vergroot.

De ligging is bovendien bijzonder aantrekkelijk. De Belgische grens ligt op korte afstand, waardoor steden als Gent, Antwerpen en Brugge binnen circa 30 minuten met de auto te bereiken zijn. Perfect voor wie graag de dynamiek van de stad opzoekt, maar de rust van een fijne woonomgeving waardeert.

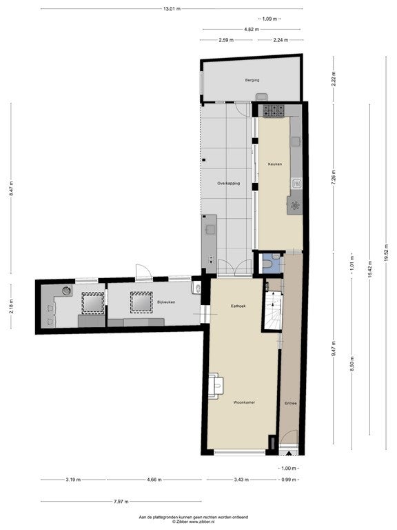
Binnen valt direct de lichte en doorlopende leefruimte op. De woonkamer heeft een warme uitstraling en wordt extra sfeervol dankzij de haard, een heerlijke plek om te ontspannen op koelere avonden. De eethoek sluit hier mooi op aan en staat in directe verbinding met de praktische bijkeuken, een ideale ruimte voor extra opslag, witgoed of hobbyactiviteiten. De vernieuwde landelijke keuken vormt het hart van de woning en is volledig ingericht met moderne apparatuur en een warme, tijdloze uitstraling. Het totaalplaatje wordt versterkt door de aanwezigheid van 12 zonnepanelen, wat de woning niet alleen comfortabel maar ook energiezuinig maakt.

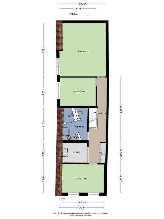
Op de eerste verdieping draait alles om ruimte en functionaliteit. De overloop geeft toegang tot drie prettig ingedeelde slaapkamers, elk keurig afgewerkt en voorzien van voldoende daglicht. De badkamer is uitgerust van alle gemakken. Daarnaast beschikt deze verdieping over extra bergruimte en een vaste kast, wat bijdraagt aan het praktische karakter van de woning.

Deze woning brengt een modern afwerkingsniveau, een sfeervolle leefruimte en een fijne tuin samen op een aantrekkelijke locatie. Met de nabijheid van de Belgische steden, de voorzieningen in de straat, zoals de bakker en supermarkt op loopafstand biedt Grootmajoorstraat 4 een fijne en complete woonervaring.

Benieuwd hoe dit huis voelt? Je bent van harte welkom om het zelf te komen ontdekken.

Overdracht

Vraagprijs
€ 349.750 k.k.
Aangeboden sinds
04-12-2025
Status
Onder bod
Beschikbaar
In overleg
Onderhoudsstaat
Goed

Oppervlakte en inhoud

Woonoppervlakte
151 m²
Perceeloppervlakte
270 m²
Inhoud
599 m³

Bouw

Type woning
Huis
Soort woning
Tussenwoning (rijtjeshuis), Eengezinswoning
Soort bouw
Bestaande bouw
Bouwjaar
1925

Indeling

Aantal kamers
4
Aantal slaapkamers
3
Aantal badkamers
1
Aantal woonlagen
3
Voorzieningen
  • Open haard
  • Douche
  • Dakraam
  • Toilet
  • Wasruimte

Buitenruimte

Balkon
Niet aanwezig
Tuin
Aanwezig (70 m², gelegen op het noordwesten)
Tuinbeschrijving
achtertuin
Achterom
Aanwezig
Dakterras
Niet aanwezig

Energie

Isolatie
Vloerisolatie, Dakisolatie
Verwarming
CV-ketel, Open haard, Gedeeltelijke vloerverwarming
Warm water
CV-ketel
Cv-ketel
Remeha (Gas, uit 2014, Eigendom)
Energielabel
A

Parkeergelegenheid

Aanwezig
Ja
Soort parkeergelegenheid
Openbaar
Meld een probleem met deze woning