Contact met de makelaar

Deze woning is gevonden buiten ons eigen netwerk. Met de knop hieronder kom je direct bij de aanbieder terecht.

Nieuw

Hoofdweg 65

Bekijk kaart
9628 CL Siddeburen (Siddeburen)
€ 439.500 k.k.
  • 136 m²
  • 7 kamers
  • 1971

Samenvatting

  • Deze woning wordt sinds 23 januari 2026 aangeboden door iQ Makelaars Midden-Groningen;
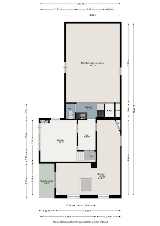
  • De vrijstaande woning heeft een woonoppervlakte van 136 m² en beschikt over 7 kamers, waarvan 4 slaapkamers;
  • De woning is gebouwd In 1971 en ligt in de buurt Siddeburen in Siddeburen.

Beschrijving

Hoofdweg 65, Siddeburen

Vrijstaand wonen met ruimte, rust en volop mogelijkheden

Aan de Hoofdweg 65 in Siddeburen staat deze vrijstaande woning waar wonen en werken perfect samenkomen. Gelegen op een royaal perceel biedt deze woning alle talloze mogelijkheden voor wie op zoek is naar rust, vrijheid en een veelzijdig erf. Deze woning heeft perfect ruimte voor hobby’s of het combineren van wonen en werken.

Wonen

De woning beschikt over een ruim woonoppervlakte en een unieke indeling. Bij binnenkomst ervaar je direct een prettige sfeer en het gevoel van ruimte. De vele kamers op de begane grond zorgen voor veel mogelijkheden in de inrichting van de woning waar je alle creativiteit op los kan laten.

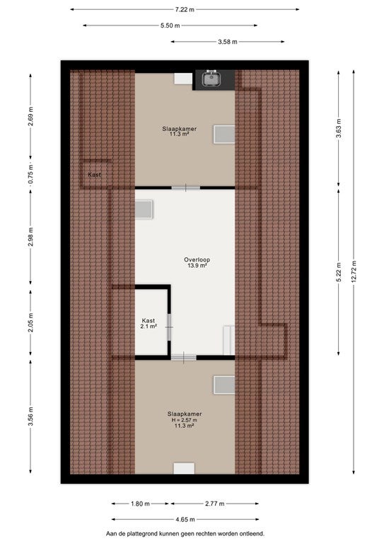
Verder beschikt de woning over meerdere slaapkamers en een kelder. waardoor het huis geschikt is voor gezinnen, thuiswerkers of levensloopbestendig wonen.

Buitenleven

Rondom de woning ligt een ruim perceel met diverse mogelijkheden. Het erf biedt volop ruimte voor tuinliefhebbers, dierenliefhebbers of het creëren van meerdere zitplekken om optimaal van het buitenleven te genieten.

De woning beschikt over een lange oprit, perfect om meerdere auto’s of andere voertuigen op te parkeren.

Het extra bijgebouw maakt het geheel extra praktisch en biedt kansen voor opslag, een hobbyruimte, werkplaats of kantoor aan huis.

Energie & onderhoud

De woning is degelijk gebouwd en door de jaren heen onderhouden. Afhankelijk van de verdere invulling en wensen biedt de woning mogelijkheden om te verduurzamen en naar eigen smaak te moderniseren.

Omgeving

Siddeburen is een levendig dorp in de gemeente Midden-Groningen met diverse voorzieningen zoals winkels, scholen en sportfaciliteiten. De ligging is gunstig ten opzichte van uitvalswegen richting Appingedam, Delfzijl en de stad Groningen. Je woont hier landelijk, maar met alle dagelijkse voorzieningen binnen handbereik.

Samengevat
• Vrijstaande woning
• Ruim perceel
• Veel privacy en mogelijkheden
• 10 zonnepanelen
• Geschikt voor wonen, werken en hobby’s

Nieuwsgierig geworden?

Neem contact met ons op voor een bezichtiging van Hoofdweg 65 in Siddeburen en ontdek de vele mogelijkheden die deze woning te bieden heeft. Een plek met potentie klaar om jouw nieuwe thuis te worden!

Belangrijk om te weten

De woning staat op een royale kavel van ruim 900 m², met daarnaast circa 1.500 m² extra grond in kosteloze, permanente bruikleen van de gemeente Midden-Groningen. Het perceel is deels verhard en beschikt over een diepe, op het zuiden gelegen natuurtuin met jonge fruitbomen. Aan de voor- en zijkant van de woning bevindt zich een verzorgde siertuin. Op de ruime oprit is plaats voor minimaal vier auto’s, wat zorgt voor comfortabele parkeergelegenheid op eigen terrein.

Overdracht

Vraagprijs
€ 439.500 k.k.
Aangeboden sinds
23-01-2026
Status
Beschikbaar
Beschikbaar
In overleg
Onderhoudsstaat
Zeer goed

Oppervlakte en inhoud

Woonoppervlakte
136 m²
Perceeloppervlakte
913 m²
Inhoud
883 m³

Bouw

Type woning
Huis
Soort woning
Vrijstaande woning, Eengezinswoning
Soort bouw
Bestaande bouw
Bouwjaar
1971

Indeling

Aantal kamers
7
Aantal slaapkamers
4
Aantal badkamers
1
Aantal woonlagen
2
Voorzieningen
  • Toilet
  • Wasruimte

Buitenruimte

Balkon
Niet aanwezig
Tuin
Aanwezig
Tuinbeschrijving
tuin rondom
Achterom
Niet aanwezig
Dakterras
Niet aanwezig

Energie

Verwarming
CV-ketel
Warm water
CV-ketel
Energielabel
B

Parkeergelegenheid

Aanwezig
Ja
Meld een probleem met deze woning