Contact met de makelaar

Deze woning is gevonden buiten ons eigen netwerk. Met de knop hieronder kom je direct bij de aanbieder terecht.

Nieuw

IJsbaan 93

Bekijk kaart
3362 KB Sliedrecht (De Grienden)
€ 865.000 k.k.
  • 173 m²
  • 4 kamers
  • 1994

Samenvatting

  • Deze woning wordt sinds 22 oktober 2025 aangeboden door Hoogveste BV;
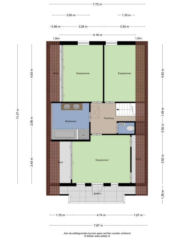
  • De vrijstaande woning heeft een woonoppervlakte van 173 m² en beschikt over 4 kamers, waarvan 3 slaapkamers;
  • De woning is gebouwd In 1994 en ligt in de buurt De Grienden in Sliedrecht;
  • De woning beschikt onder andere over de volgende voorzieningen: Airconditioning, Bad, Rolluiken, Douche, Bergruimte, Toilet.

Beschrijving

Meer woninginformatie bekijken?

Log in of registreer gratis.

Overdracht

Vraagprijs
€ 865.000 k.k.
Aangeboden sinds
22-10-2025
Status
Beschikbaar
Beschikbaar
In overleg
Onderhoudsstaat
Goed

Oppervlakte en inhoud

Woonoppervlakte
173 m²
Perceeloppervlakte
477 m²
Inhoud
766 m³

Bouw

Type woning
Huis
Soort woning
Vrijstaande woning, Villa
Soort bouw
Bestaande bouw
Bouwjaar
1994
Ligging
  • In een woonwijk
  • Open gebied
  • Vrij uitzicht

Indeling

Aantal kamers
4
Aantal slaapkamers
3
Aantal badkamers
1
Aantal woonlagen
3
Voorzieningen
  • Airconditioning
  • Bad
  • Rolluiken
  • Douche
  • Bergruimte
  • Toilet

Buitenruimte

Balkon
Niet aanwezig
Tuin
Aanwezig (207 m², gelegen op het westen)
Tuinbeschrijving
achtertuin, voortuin, zijtuin
Dakterras
Niet aanwezig

Energie

Isolatie
Dubbele beglazing, Vloerisolatie, Dakisolatie, Muurisolatie
Verwarming
CV-ketel
Warm water
CV-ketel
Energielabel
A

Parkeergelegenheid

Aanwezig
Ja
Soort parkeergelegenheid
Openbaar

Garage

Aanwezig
Ja
Omschrijving
Aangebouwd steen
Meld een probleem met deze woning
Contact met de makelaar Bel