Niet beschikbaar

De woning die je wilt bekijken is niet langer beschikbaar. Je bekijkt nu het woningaanbod in dezelfde stad.

Contact met de makelaar

Deze woning is gevonden buiten ons eigen netwerk. Met de knop hieronder kom je direct bij de aanbieder terecht.

Verkocht onder voorbehoud

Nieuwendijk 52

Bekijk kaart
5712 EN Someren (Someren-Eind)
€ 675.000 k.k.
  • 204 m²
  • 4 kamers
  • 1963

Samenvatting

  • Deze woning wordt sinds 6 weken aangeboden door Wijnen Vastgoed;
  • De vrijstaande woning heeft een woonoppervlakte van 204 m² en beschikt over 4 kamers, waarvan 3 slaapkamers;
  • De woning is gebouwd In 1963 en ligt in de buurt Someren-Eind in Someren.

Beschrijving

Overdracht

Vraagprijs
€ 675.000 k.k.
Aangeboden sinds
08-10-2025
Status
Verkocht onder voorbehoud
Beschikbaar
In overleg
Onderhoudsstaat
Goed

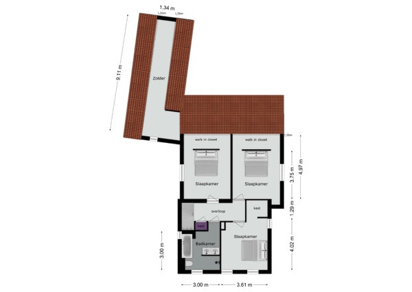
Oppervlakte en inhoud

Woonoppervlakte
204 m²
Perceeloppervlakte
707 m²
Inhoud
820 m³

Bouw

Type woning
Huis
Soort woning
Vrijstaande woning, Eengezinswoning
Soort bouw
Bestaande bouw
Bouwjaar
1963

Indeling

Aantal kamers
4
Aantal slaapkamers
3
Aantal badkamers
2
Voorzieningen
  • Zolder
  • Toilet

Buitenruimte

Balkon
Niet aanwezig
Tuin
Aanwezig (gelegen op het noorden)
Dakterras
Niet aanwezig

Energie

Isolatie
Vloerisolatie, Dakisolatie, Muurisolatie
Verwarming
CV-ketel
Energielabel
B

Parkeergelegenheid

Aanwezig
Ja

Garage

Aanwezig
Nee
Meld een probleem met deze woning
Contact met de makelaar Bel