Contact met de makelaar

Deze woning is gevonden buiten ons eigen netwerk. Met de knop hieronder kom je direct bij de aanbieder terecht.

Nieuw

Saturnusstraat 20

Bekijk kaart
5694 TJ Son en Breugel ('t Eigen en Hoogstraat)
€ 398.500 k.k.
  • 118 m²
  • 5 kamers
  • 1972

Samenvatting

  • Deze woning wordt sinds 2 oktober 2025 aangeboden door Sol Makelaardij;
  • De hoekwoning heeft een woonoppervlakte van 118 m² en beschikt over 5 kamers, waarvan 4 slaapkamers;
  • De woning is gebouwd In 1972 en ligt in de buurt 't Eigen en Hoogstraat in Son en Breugel;
  • De woning beschikt onder andere over de volgende voorzieningen: Kabel TV, Buitenzonwering, Douche, Bergruimte, Toilet.

Beschrijving

Overdracht

Vraagprijs
€ 398.500 k.k.
Aangeboden sinds
02-10-2025
Status
Beschikbaar
Beschikbaar
In overleg
Onderhoudsstaat
Goed

Oppervlakte en inhoud

Woonoppervlakte
118 m²
Perceeloppervlakte
234 m²
Inhoud
413 m³

Bouw

Type woning
Huis
Soort woning
Hoekwoning, Eengezinswoning
Soort bouw
Bestaande bouw
Bouwjaar
1972
Ligging
  • Aan een rustige weg
  • In een woonwijk
  • Nabij het openbaar vervoer
  • Nabij een school
  • Vrij uitzicht

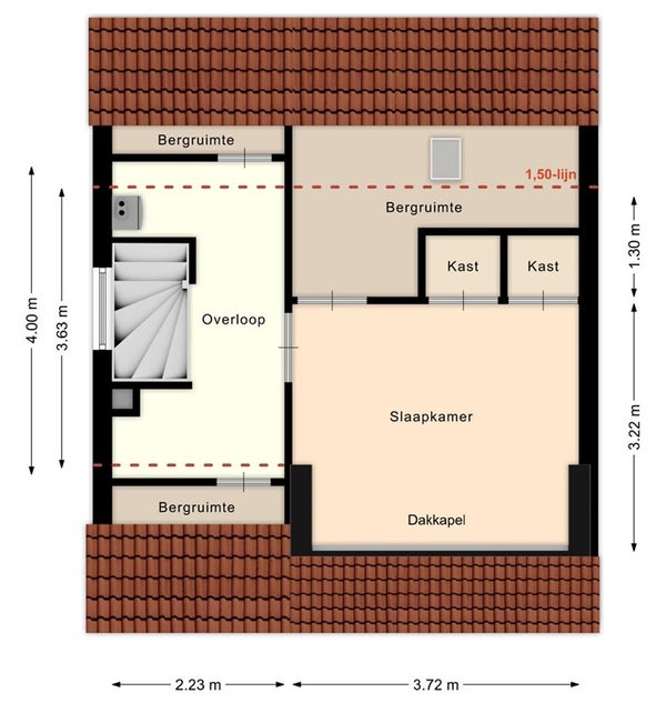
Indeling

Aantal kamers
5
Aantal slaapkamers
4
Aantal badkamers
1
Aantal woonlagen
3
Voorzieningen
  • Kabel TV
  • Buitenzonwering
  • Douche
  • Bergruimte
  • Toilet

Buitenruimte

Balkon
Niet aanwezig
Tuin
Aanwezig (78 m², gelegen op het noordoosten)
Tuinbeschrijving
achtertuin
Dakterras
Niet aanwezig

Energie

Isolatie
Gedeeltelijk dubbele beglazing, Dakisolatie
Verwarming
CV-ketel
Warm water
CV-ketel
Cv-ketel
Remeha (Gas, uit 2021, Eigendom)
Energielabel
D

Bergruimte

Schuur/Berging
Aanwezig

Parkeergelegenheid

Aanwezig
Ja
Soort parkeergelegenheid
Openbaar
Meld een probleem met deze woning
Contact met de makelaar Bel