Contact met de makelaar

Deze woning is gevonden buiten ons eigen netwerk. Met de knop hieronder kom je direct bij de aanbieder terecht.

Nieuw

Hommelweg 2 R

Bekijk kaart
6114 RT Susteren (Recreatiepark Hommelheide)
€ 347.000 k.k.
  • 147 m²
  • 6 kamers
  • 2011

Samenvatting

  • Deze woning wordt sinds 29 januari 2026 aangeboden door Lassoo Makelaars & Taxateurs;
  • De tussenwoning heeft een woonoppervlakte van 147 m² en beschikt over 6 kamers, waarvan 5 slaapkamers;
  • De woning is gebouwd In 2011 en ligt in de buurt Recreatiepark Hommelheide in Susteren.

Beschrijving

Op EuroParcs Resort Limburg bevindt zich een ruime woning van ca. 147 m², met energielabel A en een tuin aan het water. De woning, gebouwd in 2011, biedt een perfecte combinatie van comfort en natuur, met parkfaciliteiten dichtbij.

Bij binnenkomst in de hal vindt u aan de rechterzijde de meterkast en links een berging met CV-ketel. De begane grond heeft een toilet, badkamer met inloopdouche en een slaapkamer. De royale living (ca. 55 m²) met open eetkamer en keuken is licht dankzij grote ramen en openslaande deuren. De keuken is uitgerust met moderne apparatuur.

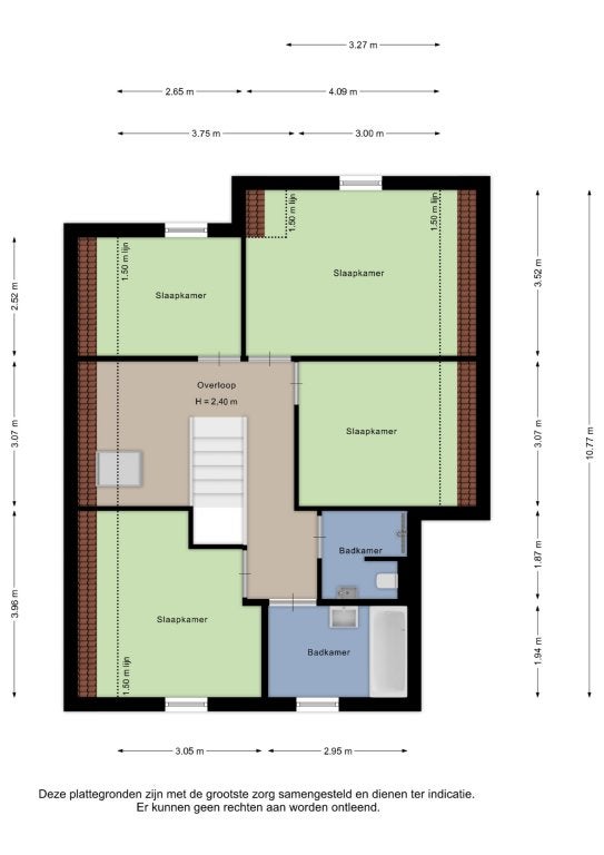
Op de eerste verdieping zijn vier slaapkamers en twee badkamers, met rolluiken en horren voor extra comfort. De volledig omheinde tuin biedt terrassen, een gazon en een serene sfeer aan het water.

De waarborgsom bedraagt 10% van de koopsom. U bent van harte welkom voor een bezichtiging.

Overdracht

Vraagprijs
€ 347.000 k.k.
Aangeboden sinds
29-01-2026
Status
Beschikbaar
Beschikbaar
Per direct

Oppervlakte en inhoud

Woonoppervlakte
147 m²
Perceeloppervlakte
500 m²

Bouw

Type woning
Huis
Soort woning
Tussenwoning (rijtjeshuis), Eengezinswoning
Soort bouw
Bestaande bouw
Bouwjaar
2011

Indeling

Aantal kamers
6
Aantal slaapkamers
5
Aantal badkamers
2

Buitenruimte

Dakterras
Niet aanwezig

Energie

Energielabel
A
Meld een probleem met deze woning