Contact met de makelaar

Deze woning is gevonden buiten ons eigen netwerk. Met de knop hieronder kom je direct bij de aanbieder terecht.

Nieuw

Tulpstraat 20

Bekijk kaart
1756 AR 't Zand (t Zand-West- en -Zuid)
€ 369.000 k.k.
  • 92 m²
  • 4 kamers
  • 1972

Samenvatting

  • Deze woning wordt sinds 27 januari 2026 aangeboden door NoordHollandswonen;
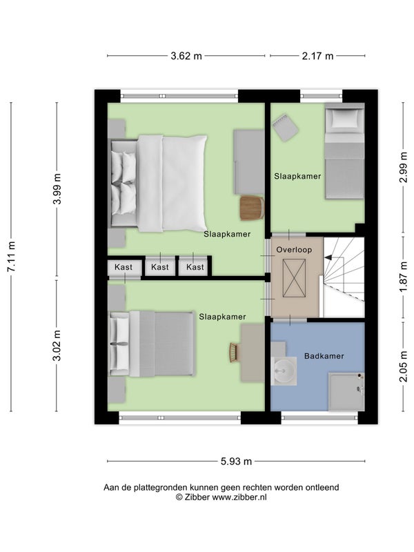
  • De tussenwoning heeft een woonoppervlakte van 92 m² en beschikt over 4 kamers, waarvan 3 slaapkamers;
  • De woning is gebouwd In 1972 en ligt in de buurt t Zand-West- en -Zuid in 't Zand.

Beschrijving

Ontdek deze ruime hoekwoning in ’t Zand, waar mogelijkheden en comfort samenkomen. De woning uit 1972 is degelijk gebouwd en praktisch ingedeeld. De lichte doorzon woonkamer biedt een gezellige zithoek en uitzicht naar de recent vernieuwde keuken. Achter de keuken vindt u de bijkeuken, perfect voor opslag. Op de eerste verdieping zijn drie royale slaapkamers en een badkamer met douche en wastafel. De zolder, bereikbaar via een vlizotrap, biedt potentieel voor extra kamers met een vaste trap en zelfs een dakkapel. De diepe tuin met een vrijstaande garage en eigen oprit nodigt uit om te ontspannen. Gelegen nabij speeltuinen en lokale voorzieningen in een rustige dorpssfeer, heeft deze woning veel te bieden. Totale inhoud: 367m³, woonoppervlakte: 92m² en perceeloppervlakte: 319m².

Overdracht

Vraagprijs
€ 369.000 k.k.
Aangeboden sinds
27-01-2026
Status
Beschikbaar
Beschikbaar
Per direct

Oppervlakte en inhoud

Woonoppervlakte
92 m²
Perceeloppervlakte
319 m²

Bouw

Type woning
Huis
Soort woning
Tussenwoning (rijtjeshuis), Eengezinswoning
Soort bouw
Bestaande bouw
Bouwjaar
1972

Indeling

Aantal kamers
4
Aantal slaapkamers
3
Aantal badkamers
1

Buitenruimte

Dakterras
Niet aanwezig

Energie

Energielabel
C
Meld een probleem met deze woning