Contact met de makelaar

Deze woning is gevonden buiten ons eigen netwerk. Met de knop hieronder kom je direct bij de aanbieder terecht.

Nieuw

Ittervoorterweg 27

Bekijk kaart
6017 BX Thorn (Thorn)
€ 350.000 k.k.
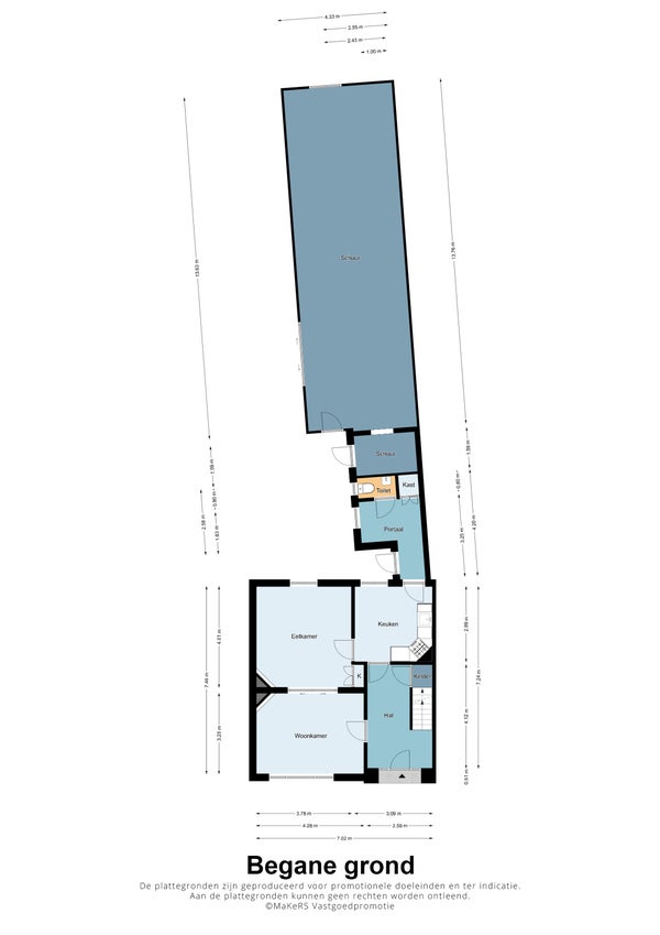
  • 113 m²
  • 3 kamers
  • 1935

Samenvatting

  • Deze woning wordt sinds 21 oktober 2025 aangeboden door Laenen Makelaardij;
  • De geschakelde woning heeft een woonoppervlakte van 113 m² en beschikt over 3 kamers, waarvan 2 slaapkamers;
  • De woning is gebouwd In 1935 en ligt in de buurt Thorn in Thorn;
  • De woning beschikt onder andere over de volgende voorzieningen: Bad, Glasvezelaansluiting, Rookkanaal, Douche, Dakraam, Toilet.

Beschrijving

Overdracht

Vraagprijs
€ 350.000 k.k.
Aangeboden sinds
21-10-2025
Status
Beschikbaar
Beschikbaar
In overleg
Bijzonderheden
Kluswoning
Onderhoudsstaat
Redelijk

Oppervlakte en inhoud

Woonoppervlakte
113 m²
Perceeloppervlakte
570 m²
Inhoud
746 m³

Bouw

Type woning
Huis
Soort woning
Geschakelde woning, Eengezinswoning
Soort bouw
Bestaande bouw
Bouwjaar
1935

Indeling

Aantal kamers
3
Aantal slaapkamers
2
Aantal badkamers
1
Aantal woonlagen
4
Voorzieningen
  • Bad
  • Glasvezelaansluiting
  • Rookkanaal
  • Douche
  • Dakraam
  • Toilet

Buitenruimte

Balkon
Niet aanwezig
Tuin
Aanwezig (312 m², gelegen op het zuidwesten)
Tuinbeschrijving
achtertuin, zijtuin
Dakterras
Niet aanwezig

Energie

Verwarming
CV-ketel
Warm water
CV-ketel
Cv-ketel
Nefit Trendline (Gas, uit 2017, Eigendom)
Energielabel
D

Bergruimte

Schuur/Berging
Aanwezig
Omschrijving
Aangebouwd steen

Parkeergelegenheid

Aanwezig
Ja
Soort parkeergelegenheid
Openbaar

Garage

Aanwezig
Nee
Meld een probleem met deze woning
Contact met de makelaar Bel