Contact met de makelaar

Deze woning is gevonden buiten ons eigen netwerk. Met de knop hieronder kom je direct bij de aanbieder terecht.

Nemelaer 6

Bekijk kaart
5071 KG Udenhout (De Mortel)
€ 595.000 k.k.
  • 165 m²
  • 6 kamers
  • 1997

Samenvatting

  • Deze woning wordt sinds 3 maanden aangeboden door Alstede van Mierlo makelaardij o.z.;
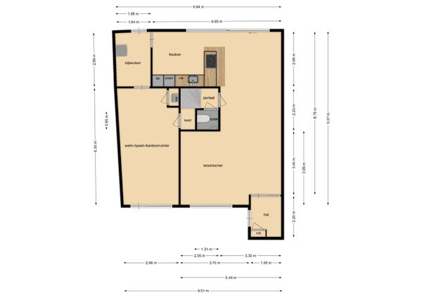
  • De tussenwoning heeft een woonoppervlakte van 165 m² en beschikt over 6 kamers, waarvan 4 slaapkamers;
  • De woning is gebouwd In 1997 en ligt in de buurt De Mortel in Udenhout;
  • De woning beschikt onder andere over de volgende voorzieningen: Bad, Kabel TV, Dakkapel, Mechanische ventilatie, Douche, Schuifdeuren, Bergruimte, Toilet.

Beschrijving

Overdracht

Vraagprijs
€ 595.000 k.k.
Aangeboden sinds
12-06-2025
Status
Beschikbaar
Beschikbaar
In overleg
Onderhoudsstaat
Goed

Oppervlakte en inhoud

Woonoppervlakte
165 m²
Perceeloppervlakte
223 m²
Inhoud
515 m³

Bouw

Type woning
Huis
Soort woning
Tussenwoning (rijtjeshuis), Eengezinswoning
Soort bouw
Bestaande bouw
Bouwjaar
1997
Ligging
  • Aan een rustige weg
  • In een woonwijk

Indeling

Aantal kamers
6
Aantal slaapkamers
4
Aantal badkamers
1
Aantal woonlagen
3
Voorzieningen
  • Bad
  • Kabel TV
  • Dakkapel
  • Mechanische ventilatie
  • Douche
  • Schuifdeuren
  • Bergruimte
  • Toilet

Buitenruimte

Balkon
Niet aanwezig
Tuin
Aanwezig (84 m², gelegen op het oosten)
Tuinbeschrijving
achtertuin, voortuin
Dakterras
Niet aanwezig

Energie

Isolatie
Dubbele beglazing, Vloerisolatie, Volledig geïsoleerd, Dakisolatie, Muurisolatie
Verwarming
CV-ketel, Gedeeltelijke vloerverwarming
Warm water
CV-ketel
Cv-ketel
Bosch (Gas, uit 2014, Eigendom)
Energielabel
A

Bergruimte

Schuur/Berging
Aanwezig
Omschrijving
Vrijstaand kunststof

Parkeergelegenheid

Aanwezig
Ja
Soort parkeergelegenheid
Openbaar

Garage

Aanwezig
Ja
Omschrijving
Carport
Meld een probleem met deze woning
Contact met de makelaar Bel