Contact met de makelaar

Deze woning is gevonden buiten ons eigen netwerk. Met de knop hieronder kom je direct bij de aanbieder terecht.

Brandnetel

Bekijk kaart
5913 DN Venlo (Groenstraat-Zuid)
€ 595.000 k.k.
  • 140 m²
  • 6 kamers
  • 2000

Samenvatting

  • Deze woning wordt sinds 5 januari 2026 aangeboden door Hauzer & Partners;
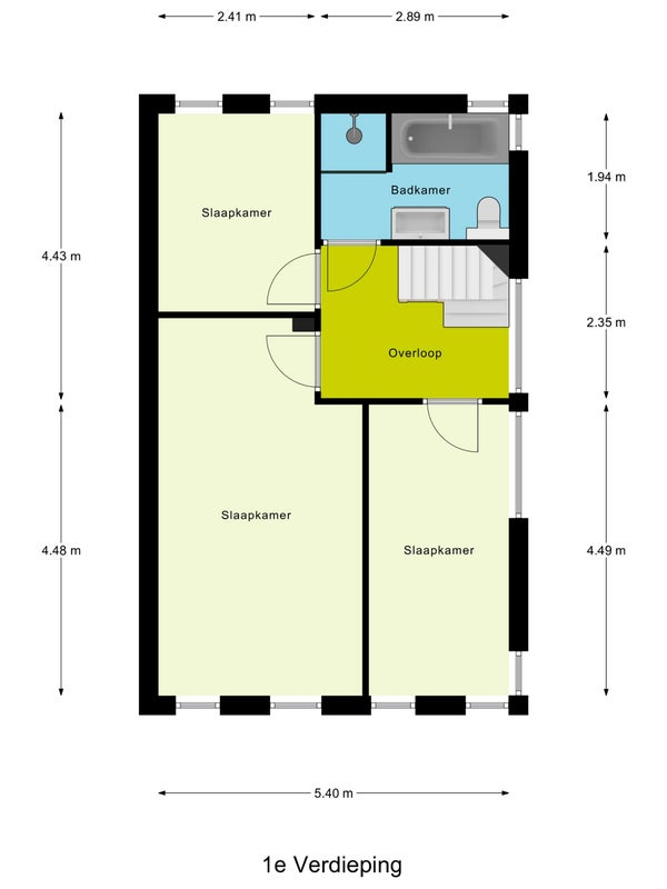
  • De tussenwoning heeft een woonoppervlakte van 140 m² en beschikt over 6 kamers, waarvan 3 slaapkamers;
  • De woning is gebouwd In 2000 en ligt in de buurt Groenstraat-Zuid in Venlo.

Beschrijving

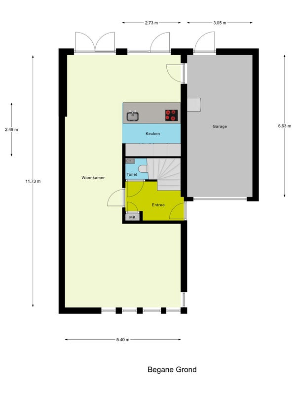
Deze vrijstaande twee-onder-een-kap woning, gebouwd in 2000, biedt een woonoppervlakte van 140 m² en een perceeloppervlakte van 252 m². De woning beschikt over 6 kamers en is recentelijk uitgebreid. De luxe keuken met kookeiland is vernieuwd in 2020 en er is een mooie, verbouwde badkamer en toiletruimte (2023) aanwezig. De tweede verdieping heeft een lichte slaapkamer met dakvensters en een aparte werk-/hobbyruimte, beide voorzien van airco. In de tuin staat een ruime overkapping en de garage is vanuit de woning bereikbaar. De osting is energiebewust met 12 zonnepanelen, isolatie en dubbel glas, en is gelegen in een rustige omgeving nabij bos, scholen en winkels.

Reageer op tijd op nieuw woningaanbod

Meer dan de helft van de reacties komt binnen 48 uur. Ontvang direct notificaties bij nieuw aanbod en reageer sneller met Pararius+.

Probeer Pararius+ 14 dagen € 0,01

Overdracht

Vraagprijs
€ 595.000 k.k.
Aangeboden sinds
05-01-2026
Status
Beschikbaar
Beschikbaar
Per direct

Oppervlakte en inhoud

Woonoppervlakte
140 m²
Perceeloppervlakte
252 m²

Bouw

Type woning
Huis
Soort woning
Tussenwoning (rijtjeshuis), Eengezinswoning
Soort bouw
Bestaande bouw
Bouwjaar
2000

Indeling

Aantal kamers
6
Aantal slaapkamers
3
Aantal badkamers
1

Buitenruimte

Dakterras
Niet aanwezig

Energie

Energielabel
B
Meld een probleem met deze woning