Contact met de makelaar

Deze woning is gevonden buiten ons eigen netwerk. Met de knop hieronder kom je direct bij de aanbieder terecht.

Zonneveld

Bekijk kaart
5923 KW Venlo (Zonneveld)
€ 395.000 k.k.
  • 122 m²
  • 6 kamers
  • 2001

Samenvatting

  • Deze woning wordt sinds 2 maanden aangeboden door Hauzer & Partners;
  • De tussenwoning heeft een woonoppervlakte van 122 m² en beschikt over 6 kamers, waarvan 4 slaapkamers;
  • De woning is gebouwd In 2001 en ligt in de buurt Zonneveld in Venlo.

Beschrijving

Deze goed onderhouden tussenwoning, gebouwd in 2001, heeft een woonoppervlakte van 122 m² en een inhoud van 404 m³. Met 6 kamers, waaronder 4 slaapkamers en een moderne keuken, biedt het gezin veel ruimte. De woning, gelegen in een kindvriendelijke wijk in Venlo-Blerick, heeft een fijne ligging aan een ventweg. Het geheel is volledig geïsoleerd en beschikt over 9 zonnepanelen (geplaatst in 2022) en energielabel A+.

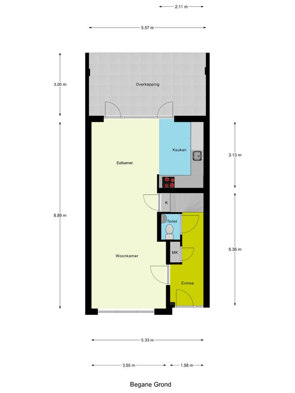
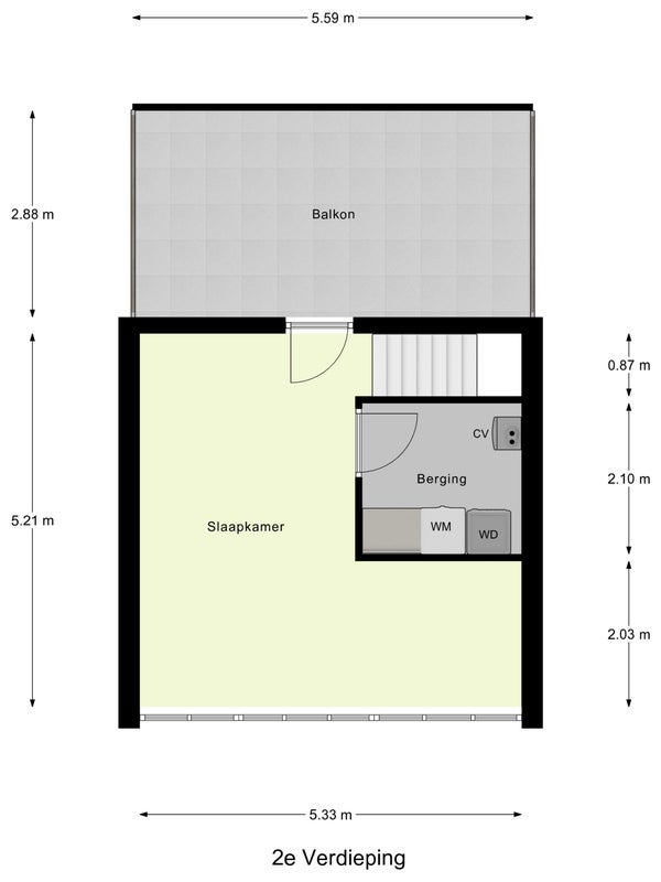
De begane grond bestaat uit een entree, hal, toilet en een woonkamer met zithoek en eethoek die in verbinding staat met de open keuken (2015). Op de eerste verdieping bevinden zich 3 slaapkamers, terwijl de tweede verdieping heeft een grote open ruimte, ideale 4e slaapkamer met toegang tot een balkon. De verzorgde tuin op het zuidoosten heeft een overkapping en terras, en een berging met elektra.

Overdracht

Vraagprijs
€ 395.000 k.k.
Aangeboden sinds
12-11-2025
Status
Beschikbaar
Beschikbaar
Per direct

Oppervlakte en inhoud

Woonoppervlakte
122 m²
Perceeloppervlakte
135 m²

Bouw

Type woning
Huis
Soort woning
Tussenwoning (rijtjeshuis), Eengezinswoning
Soort bouw
Bestaande bouw
Bouwjaar
2001

Indeling

Aantal kamers
6
Aantal slaapkamers
4
Aantal badkamers
1

Buitenruimte

Dakterras
Niet aanwezig

Energie

Energielabel
A+
Meld een probleem met deze woning