Contact met de makelaar

Deze woning is gevonden buiten ons eigen netwerk. Met de knop hieronder kom je direct bij de aanbieder terecht.

Tegelseweg

Bekijk kaart
5912 BJ Venlo (Sinselveld)
€ 399.000 k.k.
  • 173 m²
  • 7 kamers
  • 1930

Samenvatting

  • Deze woning wordt sinds 2 maanden aangeboden door Hauzer & Partners;
  • De tussenwoning heeft een woonoppervlakte van 173 m² en beschikt over 7 kamers, waarvan 6 slaapkamers;
  • De woning is gebouwd In 1930 en ligt in de buurt Sinselveld in Venlo.

Beschrijving

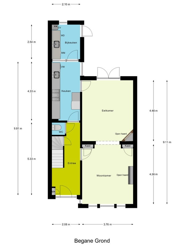
Dit herenhuis, gebouwd in 1930, biedt een woonoppervlakte van 173 m² en een inhoud van 708 m³ op een perceel van 180 m². Bij binnenkomst voel je een karakteristieke sfeer met een terrazzo vloer in de hal, hoge plafonds en authentieke paneeldeuren. De sfeervolle ensuite woonkamer beschikt over een eiken vloer en originele schouwen, met openslaande deuren naar de ommuurde tuin, die ook een garage/schuur bevat voor extra ruimte. De gesloten keuken is uitgerust met een inbouwcombinatie. Op de eerste verdieping bevinden zich drie slaapkamers en een badkamer met douche, wastafel en toilet. De tweede verdieping biedt nog eens drie slaapkamers. Er zijn 8 zonnepanelen, dakisolatie en dubbel glas aanwezig voor energie-efficiëntie.

Reageer op tijd op nieuw woningaanbod

Meer dan de helft van de reacties komt binnen 48 uur. Ontvang direct notificaties bij nieuw aanbod en reageer sneller met Pararius+.

Probeer Pararius+ 14 dagen € 0,01

Overdracht

Vraagprijs
€ 399.000 k.k.
Aangeboden sinds
31-10-2025
Status
Beschikbaar
Beschikbaar
Per direct

Oppervlakte en inhoud

Woonoppervlakte
173 m²
Perceeloppervlakte
180 m²

Bouw

Type woning
Huis
Soort woning
Tussenwoning (rijtjeshuis), Eengezinswoning
Soort bouw
Bestaande bouw
Bouwjaar
1930

Indeling

Aantal kamers
7
Aantal slaapkamers
6
Aantal badkamers
1

Buitenruimte

Dakterras
Niet aanwezig

Energie

Energielabel
C
Meld een probleem met deze woning