Contact met de makelaar

Deze woning is gevonden buiten ons eigen netwerk. Met de knop hieronder kom je direct bij de aanbieder terecht.

Jean Laudystraat

Bekijk kaart
5913 HL Venlo (De Tichelarij)
€ 375.000 k.k.
  • 140 m²
  • 8 kamers
  • 1972

Samenvatting

  • Deze woning wordt sinds 2 maanden aangeboden door Hauzer & Partners;
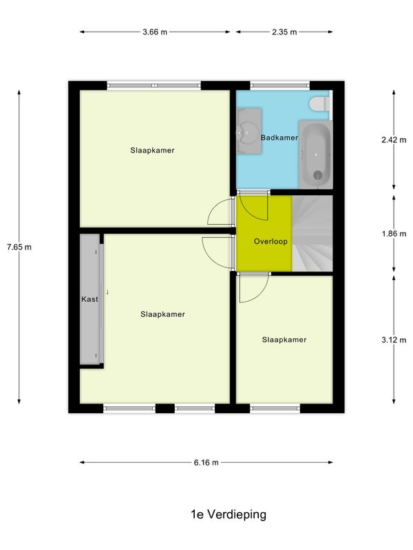
  • De tussenwoning heeft een woonoppervlakte van 140 m² en beschikt over 8 kamers, waarvan 4 slaapkamers;
  • De woning is gebouwd In 1972 en ligt in de buurt De Tichelarij in Venlo.

Beschrijving

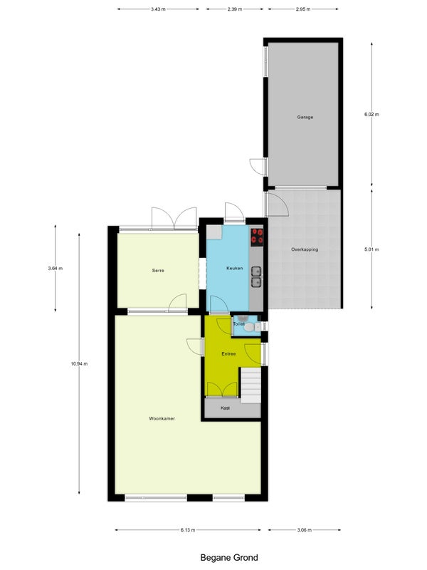
Deze ruime en goed onderhouden twee-onder-een-kapwoning in Venlo biedt volop leefruimte. Met een woonoppervlakte van 140 m², acht kamers en een perceeloppervlakte van 230 m², is het een ideale gezinswoning. De begane grond heeft een praktische hal, een L-vormige woonkamer die aansluit op een halfopen keuken, en een serre met uitzicht op de tuin. Op de eerste verdieping zijn drie slaapkamers en een badkamer met een bad/douche combinatie te vinden. De tweede verdieping biedt een extra slaapkamer met dakkapel en twee bergruimtes. Buiten zijn er keurig onderhouden voor- en achtertuinen, een eigen oprit en een garage. De woning beschikt over dubbele beglazing en heeft energielabel C.

Reageer op tijd op nieuw woningaanbod

Meer dan de helft van de reacties komt binnen 48 uur. Ontvang direct notificaties bij nieuw aanbod en reageer sneller met Pararius+.

Probeer Pararius+ 14 dagen € 0,01

Overdracht

Vraagprijs
€ 375.000 k.k.
Aangeboden sinds
31-10-2025
Status
Beschikbaar
Beschikbaar
Per direct

Oppervlakte en inhoud

Woonoppervlakte
140 m²
Perceeloppervlakte
230 m²

Bouw

Type woning
Huis
Soort woning
Tussenwoning (rijtjeshuis), Eengezinswoning
Soort bouw
Bestaande bouw
Bouwjaar
1972

Indeling

Aantal kamers
8
Aantal slaapkamers
4
Aantal badkamers
1

Buitenruimte

Dakterras
Niet aanwezig

Energie

Energielabel
C
Meld een probleem met deze woning