Contact met de makelaar

Deze woning is gevonden buiten ons eigen netwerk. Met de knop hieronder kom je direct bij de aanbieder terecht.

Bontwerkersstraat

Bekijk kaart
5914 PA Venlo ('t Zand)
€ 289.000 k.k.
  • 76 m²
  • 5 kamers
  • 1949

Samenvatting

  • Deze woning wordt sinds 7 weken aangeboden door Hauzer & Partners;
  • De tussenwoning heeft een woonoppervlakte van 76 m² en beschikt over 5 kamers, waarvan 3 slaapkamers;
  • De woning is gebouwd In 1949 en ligt in de buurt 't Zand in Venlo.

Beschrijving

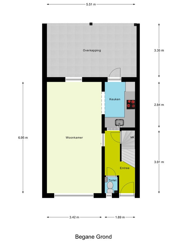
Deze gemoderniseerde tussenwoning uit 1949 biedt een woonoppervlakte van 76 m² en een inhoud van 314 m³. Op een perceel van 139 m² beschikt het huis over 5 kamers, waaronder 3 slaapkamers van respectievelijk ca. 15, 8 en 5 m². De woning heeft een diepe achtertuin van ca. 17 m diep, gelegen op het zuidwesten, met een vlonderterras, overkapping en tuinhuis. Binnen vind je een lichte woonkamer, een open L-vormige keuken met moderne apparatuur, en een vernieuwde badkamer met inloopdouche. De kelder biedt extra opslagruimte en aansluitingen voor wasmachine en droger. De woning is uitgerust met kunststof kozijnen en dubbel glas, heeft een energielabel E en ligt in een rustige straat nabij voorzieningen en de Maas.

Overdracht

Vraagprijs
€ 289.000 k.k.
Aangeboden sinds
07-11-2025
Status
Beschikbaar
Beschikbaar
Per direct

Oppervlakte en inhoud

Woonoppervlakte
76 m²
Perceeloppervlakte
139 m²

Bouw

Type woning
Huis
Soort woning
Tussenwoning (rijtjeshuis), Eengezinswoning
Soort bouw
Bestaande bouw
Bouwjaar
1949

Indeling

Aantal kamers
5
Aantal slaapkamers
3
Aantal badkamers
1

Buitenruimte

Dakterras
Niet aanwezig

Energie

Energielabel
E
Meld een probleem met deze woning