Contact met de makelaar

Deze woning is gevonden buiten ons eigen netwerk. Met de knop hieronder kom je direct bij de aanbieder terecht.

Brookerveld

Bekijk kaart
5926 SW Venlo (Kern Hout-Blerick)
€ 599.000 k.k.
  • 173 m²
  • 9 kamers
  • 2004

Samenvatting

  • Deze woning wordt sinds 5 januari 2026 aangeboden door Hauzer & Partners;
  • De tussenwoning heeft een woonoppervlakte van 173 m² en beschikt over 9 kamers, waarvan 5 slaapkamers;
  • De woning is gebouwd In 2004 en ligt in de buurt Kern Hout-Blerick in Venlo.

Beschrijving

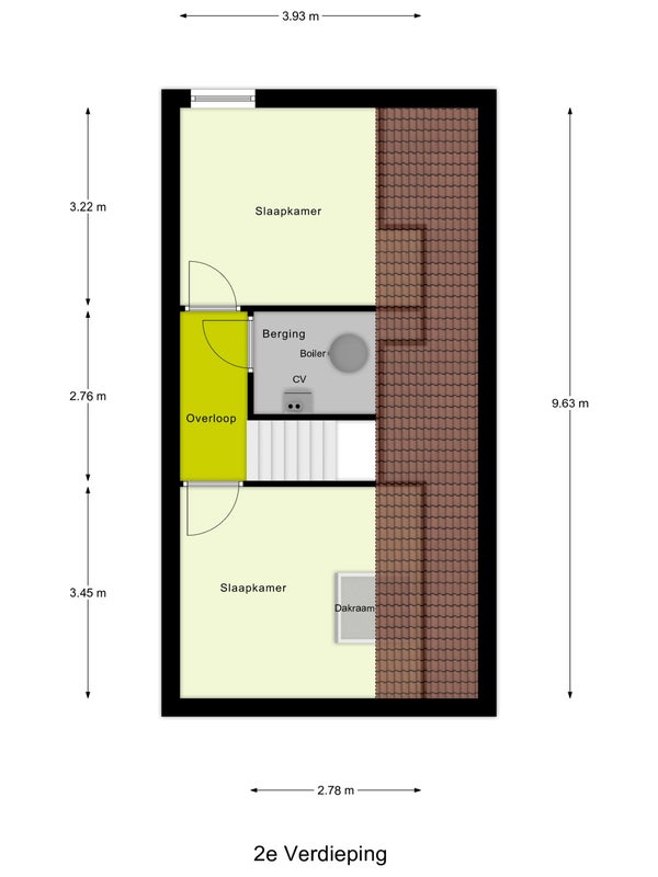
Deze royale, goed geïsoleerde gezinswoning aan het Brookerveld 15 heeft een woonoppervlakte van 173 m² en staat op een perceel van 396 m². Gebouwd in 2004, beschikt deze woning over 9 kamers, waaronder 5 slaapkamers. De indeling is praktisch en licht, met een brede woonkamer en een uitgebouwde leefkeuken die is voorzien van diverse inbouwapparatuur. De woning is volledig geïsoleerd en biedt comfortabele vloerverwarming op de begane grond, wat bijdraagt aan energiebewust wonen. Op de eerste verdieping bevinden zich 3 slaapkamers en een nette badkamer. De tweede verdieping heeft nog eens 2 slaapkamers en technische ruimtes. De achtertuin is aangelegd met terras, gazon en biedt privacy. Deze woning ligt in een rustige straat nabij scholen en voorzieningen.

Overdracht

Vraagprijs
€ 599.000 k.k.
Aangeboden sinds
05-01-2026
Status
Beschikbaar
Beschikbaar
Per direct

Oppervlakte en inhoud

Woonoppervlakte
173 m²
Perceeloppervlakte
396 m²

Bouw

Type woning
Huis
Soort woning
Tussenwoning (rijtjeshuis), Eengezinswoning
Soort bouw
Bestaande bouw
Bouwjaar
2004

Indeling

Aantal kamers
9
Aantal slaapkamers
5
Aantal badkamers
1

Buitenruimte

Dakterras
Niet aanwezig

Energie

Energielabel
A
Meld een probleem met deze woning