- 99 m²
- 5 kamers
- 1986
Samenvatting
- Deze woning wordt sinds 5 januari 2026 aangeboden door Hauzer & Partners;
- De tussenwoning heeft een woonoppervlakte van 99 m² en beschikt over 5 kamers, waarvan 3 slaapkamers;
- De woning is gebouwd In 1986 en ligt in de buurt Craneveld in Venlo.
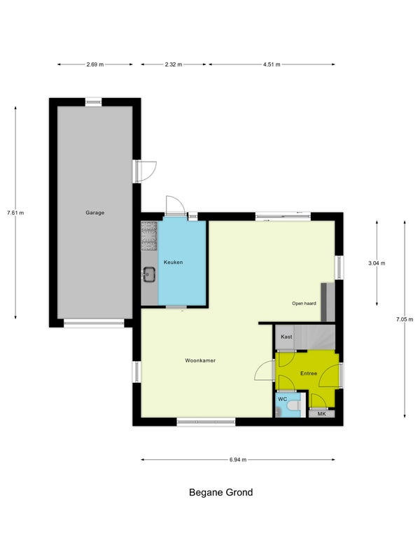
Beschrijving
Deze vrijstaande woning biedt de mogelijkheid tot comfortabel wonen op een toplocatie nabij het centrum van Venlo en het Wilhelminapark. Met een woonoppervlakte van 99 m² en een perceeloppervlakte van 300 m², beschikken de bewoners over vijf kamers, waaronder drie slaapkamers op de eerste verdieping. De begane grond herbergt een lichte L-vormige woonkamer die open verbinding heeft met de keuken, wat leidt naar de zonnige tuin. De badkamer op de eerste verdieping is volledig betegeld en bevat een douche, ligbad en toilet. De ruime zolder op de tweede verdieping, bereikbaar via een vaste trap, kan dienen als vierde slaapkamer of werkruimte. Tot de buitenruimte behoort een verzorgde tuin met privacy en diverse borders.
Overdracht
- Vraagprijs
- € 439.000 k.k.
- Aangeboden sinds
- 05-01-2026
- Status
- Beschikbaar
- Beschikbaar
- Per direct
Oppervlakte en inhoud
- Woonoppervlakte
- 99 m²
- Perceeloppervlakte
- 300 m²
Bouw
- Type woning
- Huis
- Soort woning
- Tussenwoning (rijtjeshuis), Eengezinswoning
- Soort bouw
- Bestaande bouw
- Bouwjaar
- 1986
Indeling
- Aantal kamers
- 5
- Aantal slaapkamers
- 3
- Aantal badkamers
- 1
Buitenruimte
- Dakterras
- Niet aanwezig
Energie
- Energielabel
- C