Contact met de makelaar

Deze woning is gevonden buiten ons eigen netwerk. Met de knop hieronder kom je direct bij de aanbieder terecht.

Nieuw

Van Leeuwenhoeklaan

Bekijk kaart
5252 CC Vlijmen (Vijfhoeven)
€ 575.000 k.k.
  • 133 m²
  • 5 kamers
  • 1986

Samenvatting

  • Deze woning wordt sinds 24 oktober 2025 aangeboden door AMB Makelaars Waalwijk I Qualis;
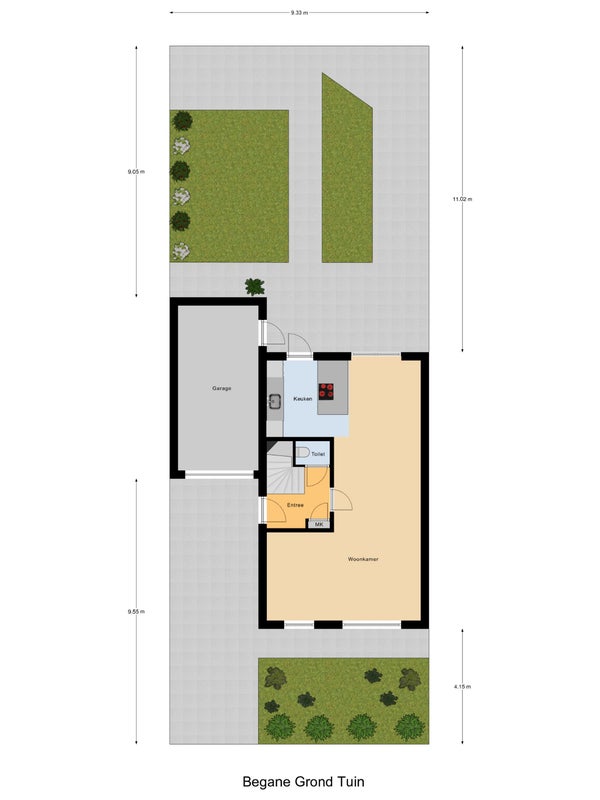
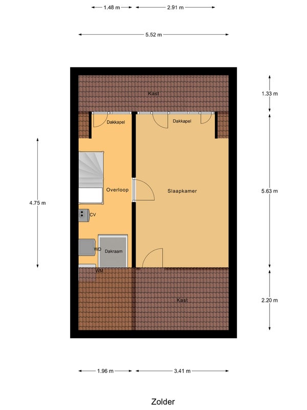
  • De tussenwoning heeft een woonoppervlakte van 133 m² en beschikt over 5 kamers, waarvan 4 slaapkamers;
  • De woning is gebouwd In 1986 en ligt in de buurt Vijfhoeven in Vlijmen.

Beschrijving

Meer woninginformatie bekijken?

Log in of registreer gratis.

Overdracht

Vraagprijs
€ 575.000 k.k.
Aangeboden sinds
24-10-2025
Status
Beschikbaar
Beschikbaar
In overleg

Oppervlakte en inhoud

Woonoppervlakte
133 m²
Perceeloppervlakte
225 m²

Bouw

Type woning
Huis
Soort woning
Tussenwoning (rijtjeshuis), Eengezinswoning
Soort bouw
Bestaande bouw
Bouwjaar
1986

Indeling

Aantal kamers
5
Aantal slaapkamers
4
Aantal badkamers
1

Buitenruimte

Dakterras
Niet aanwezig
Meld een probleem met deze woning