Contact met de makelaar

Deze woning is gevonden buiten ons eigen netwerk. Met de knop hieronder kom je direct bij de aanbieder terecht.

Nieuw

Helvoirtseweg

Bekijk kaart
5263 EB Vught (Schoonveld)
€ 400.000 k.k.
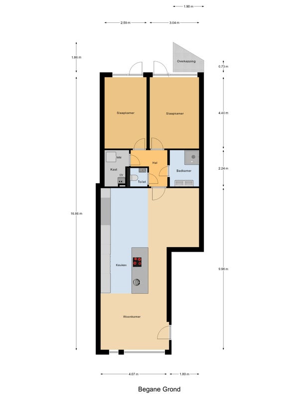
  • 88 m²
  • 3 kamers
  • 1930

Samenvatting

  • Deze woning wordt sinds 25 oktober 2025 aangeboden door AMB Makelaars Waalwijk I Qualis;
  • De tussenwoning heeft een woonoppervlakte van 88 m² en beschikt over 3 kamers, waarvan 2 slaapkamers;
  • De woning is gebouwd In 1930 en ligt in de buurt Schoonveld in Vught.

Beschrijving

Meer woninginformatie bekijken?

Log in of registreer gratis.

Overdracht

Vraagprijs
€ 400.000 k.k.
Aangeboden sinds
25-10-2025
Status
Beschikbaar
Beschikbaar
In overleg

Oppervlakte en inhoud

Woonoppervlakte
88 m²

Bouw

Type woning
Huis
Soort woning
Tussenwoning (rijtjeshuis), Eengezinswoning
Soort bouw
Bestaande bouw
Bouwjaar
1930

Indeling

Aantal kamers
3
Aantal slaapkamers
2
Aantal badkamers
1

Buitenruimte

Dakterras
Niet aanwezig
Meld een probleem met deze woning