Contact met de makelaar

Deze woning is gevonden buiten ons eigen netwerk. Met de knop hieronder kom je direct bij de aanbieder terecht.

Rossinistraat 2

Bekijk kaart
5144 XV Waalwijk (Zanddonk)
€ 365.000 k.k.
  • 128 m²
  • 4 kamers
  • 1981

Samenvatting

  • Deze woning wordt sinds 16 oktober 2025 aangeboden door Hendriks Makelaardij Tilburg;
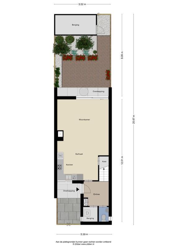
  • De tussenwoning heeft een woonoppervlakte van 128 m² en beschikt over 4 kamers, waarvan 3 slaapkamers;
  • De woning is gebouwd In 1981 en ligt in de buurt Zanddonk in Waalwijk.

Beschrijving

Meer woninginformatie bekijken?

Log in of registreer gratis.

Overdracht

Vraagprijs
€ 365.000 k.k.
Aangeboden sinds
16-10-2025
Status
Beschikbaar
Beschikbaar
In overleg

Oppervlakte en inhoud

Woonoppervlakte
128 m²
Perceeloppervlakte
111 m²
Inhoud
453 m³

Bouw

Type woning
Huis
Soort woning
Tussenwoning (rijtjeshuis), Eengezinswoning
Soort bouw
Bestaande bouw
Bouwjaar
1981

Indeling

Aantal kamers
4
Aantal slaapkamers
3

Buitenruimte

Balkon
Niet aanwezig
Tuin
Aanwezig
Dakterras
Niet aanwezig

Energie

Energielabel
A

Garage

Aanwezig
Nee
Meld een probleem met deze woning
Contact met de makelaar Bel