Contact met de makelaar

Deze woning is gevonden buiten ons eigen netwerk. Met de knop hieronder kom je direct bij de aanbieder terecht.

Leumehofstraat

Bekijk kaart
6002 CL Weert (Boshoven-Vrakker)
€ 750.000 k.k.
  • 184 m²
  • 4 kamers
  • 2004

Samenvatting

  • Deze woning wordt sinds 30 oktober 2025 aangeboden door Laenen Makelaardij | VerschilMakelaar;
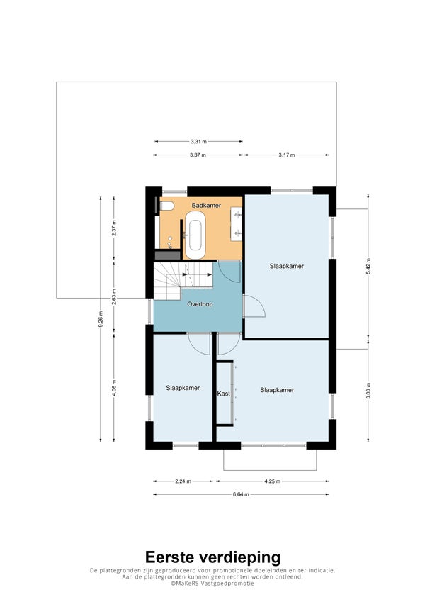
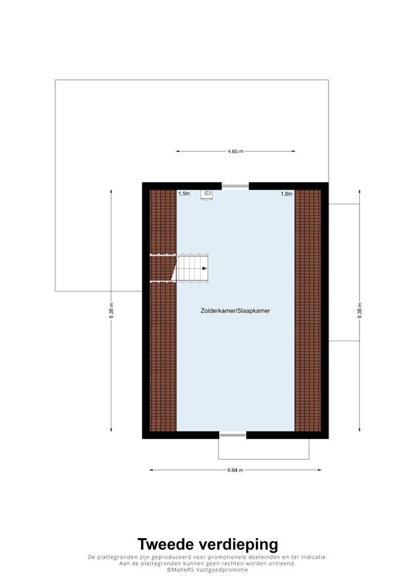
  • De tussenwoning heeft een woonoppervlakte van 184 m² en beschikt over 4 kamers, waarvan 3 slaapkamers;
  • De woning is gebouwd In 2004 en ligt in de buurt Boshoven-Vrakker in Weert.

Beschrijving

Meer woninginformatie bekijken?

Log in of registreer gratis.

Overdracht

Vraagprijs
€ 750.000 k.k.
Aangeboden sinds
30-10-2025
Status
Beschikbaar
Beschikbaar
In overleg

Oppervlakte en inhoud

Woonoppervlakte
184 m²
Perceeloppervlakte
465 m²

Bouw

Type woning
Huis
Soort woning
Tussenwoning (rijtjeshuis), Eengezinswoning
Soort bouw
Bestaande bouw
Bouwjaar
2004

Indeling

Aantal kamers
4
Aantal slaapkamers
3
Aantal badkamers
1

Buitenruimte

Dakterras
Niet aanwezig
Meld een probleem met deze woning