Contact met de makelaar

Deze woning is gevonden buiten ons eigen netwerk. Met de knop hieronder kom je direct bij de aanbieder terecht.

Droge Wijmersweg

Bekijk kaart
1693 HP Wervershoof (Wervershoof Onderdijk Aan de Vliet)
€ 469.000 k.k.
  • 104 m²
  • 4 kamers
  • 1993

Samenvatting

  • Deze woning wordt sinds 7 weken aangeboden door KUIN MAKELAARDIJ, actief en gedreven;
  • De tussenwoning heeft een woonoppervlakte van 104 m² en beschikt over 4 kamers, waarvan 3 slaapkamers;
  • De woning is gebouwd In 1993 en ligt in de buurt Wervershoof Onderdijk Aan de Vliet in Wervershoof.

Beschrijving

Op bungalowpark De Vlietlanden word je wakker met uitzicht op water, omringd door groen en rust. Deze vrijstaande woning, met eigen garage en onderhoudsarme tuin aan het vaarwater, ligt ideaal nabij de ingang van het park. Voorzijde biedt privacy door het uitzicht op groenvoorzieningen, terwijl achter het brede water een vakantiegevoel oproept.

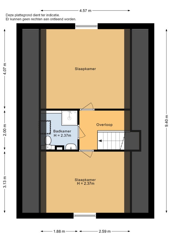
De woning heeft een ruime hal die toegang geeft tot een praktische hoekkeuken met aansluitend een lichte woonkamer, waarin grote ramen een prachtig uitzicht bieden. Een nieuwe schuifpui leidt naar de tuin met terras en vlonder aan het water, perfect voor ontspanning. Op de begane grond bevindt zich een slaapkamer, badkamer met ligbad, en een apart toilet.

De eerste verdieping biedt nog eens twee royale slaapkamers met daglicht, met uitzicht op het water vanuit de achterste kamer, plus een tweede badkamer. Met een perceel van ca. 314 m2, parklasten van € 1.560,39 jaarlijks, en voorzieningen zoals speelplaatsen en tennisbanen in de nabijheid, is dit een ideale plek voor zowel recreatie als permanent wonen.

Overdracht

Vraagprijs
€ 469.000 k.k.
Aangeboden sinds
19-12-2025
Status
Beschikbaar
Beschikbaar
Per direct

Oppervlakte en inhoud

Woonoppervlakte
104 m²
Perceeloppervlakte
314 m²

Bouw

Type woning
Huis
Soort woning
Tussenwoning (rijtjeshuis), Eengezinswoning
Soort bouw
Bestaande bouw
Bouwjaar
1993

Indeling

Aantal kamers
4
Aantal slaapkamers
3
Aantal badkamers
2

Buitenruimte

Dakterras
Niet aanwezig

Energie

Energielabel
C
Meld een probleem met deze woning