- 136 m²
- 5 kamers
- 2006
Samenvatting
- Deze woning wordt sinds 27 januari 2026 aangeboden door Taams Makelaars & Taxateurs;
- De tussenwoning heeft een woonoppervlakte van 136 m² en beschikt over 5 kamers, waarvan 3 slaapkamers;
- De woning is gebouwd In 2006 en ligt in de buurt Winkel Trambaan in Winkel.
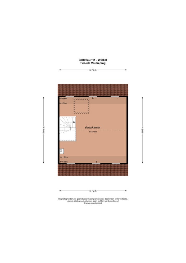
Beschrijving
Deze instapklare eengezinswoning, gelegen in het charmante dorp Winkel, biedt 136 m² woonoppervlakte en beschikt over 5 kamers, waaronder 3 slaapkamers. De woning, gebouwd in 2006, heeft onlangs een stijlvolle restyling ondergaan op zowel de begane grond als de eerste verdieping. De modern ingerichte woonkamer heeft een tuindeur naar de zonnige achtertuin, gelegen op het zuidwesten, met een prachtig uitzicht over het water.
De luxe keuken is voorzien van diverse inbouwapparatuur. De eerste verdieping heeft drie ruime slaapkamers en een luxe badkamer met whirlpool en ruime douche. De tweede verdieping biedt een royale open zolderkamer, ideaal voor extra slaap- of werkruimte. Daarnaast zijn er zonnepanelen, vloerverwarming en volledige isolatie aanwezig. Winkel heeft goede voorzieningen en is goed bereikbaar voor dagelijkse boodschappen.
Overdracht
- Vraagprijs
- € 439.500 k.k.
- Aangeboden sinds
- 27-01-2026
- Status
- Beschikbaar
- Beschikbaar
- In overleg
Oppervlakte en inhoud
- Woonoppervlakte
- 136 m²
- Perceeloppervlakte
- 132 m²
Bouw
- Type woning
- Huis
- Soort woning
- Tussenwoning (rijtjeshuis), Eengezinswoning
- Soort bouw
- Bestaande bouw
- Bouwjaar
- 2006
Indeling
- Aantal kamers
- 5
- Aantal slaapkamers
- 3
- Aantal badkamers
- 1
Buitenruimte
- Dakterras
- Niet aanwezig
Energie
- Energielabel
- A