Contact met de makelaar

Deze woning is gevonden buiten ons eigen netwerk. Met de knop hieronder kom je direct bij de aanbieder terecht.

Pres J.F. Kennedystraat 20

Bekijk kaart
6286 BG Wittem (Verspreide huizen)
€ 359.000 k.k.
  • 122 m²
  • 4 kamers
  • 1966

Samenvatting

  • Deze woning wordt sinds 6 januari 2026 aangeboden door Somers & Brabant Vastgoed;
  • De 2-onder-1-kapwoning heeft een woonoppervlakte van 122 m² en beschikt over 4 kamers, waarvan 3 slaapkamers;
  • De woning is gebouwd In 1966 en ligt in de buurt Verspreide huizen in Wittem;
  • De woning beschikt onder andere over de volgende voorzieningen: Alarm, Internetaansluiting, Buitenzonwering, Rolluiken, Rioolaansluiting, Douche, Schuifdeuren, Bergruimte, Toilet.

Beschrijving

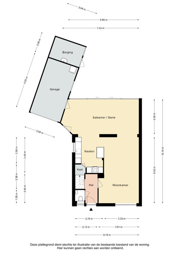
Sfeervolle en uitstekend onderhouden twee-onder-een-kapwoning met serre, garage en eigen parkeergelegenheid, rustig gelegen in Wahlwiller (Wilder) aan de President J.F. Kennedystraat 20.

Op korte afstand van het groene buitengebied met volop wandel- en fietsmogelijkheden.

Deze fraai afgewerkte woning beschikt op de begane grond over een royale en lichte leefruimte. De grote serre vormt een absolute meerwaarde en is voorzien van een automatisch schuifdak met geïntegreerde zonwering, waardoor je hier het hele jaar door comfortabel kunt verblijven. Middels de serre stap je door de royale schuifpui op het terras. Tijdens de koudere maanden zorgt de pelletkachel voor extra sfeer en warmte.

De open keuken is modern uitgevoerd en compleet uitgerust met een inductiekookplaat, afzuigkap, oven, koelkast, vaatwasser, bareiland en een praktische muurkast. Daarnaast bevindt zich op de begane grond een toiletruimte met hangend closet en fontein.

De benedenverdieping heeft een grindvloer en bij de aanbouw zelfs met vloerverwarming.

De woning is keurig onderhouden en heeft een actuele, moderne afwerking met onder andere een eigentijdse keuken en badkamer. Het hoofd dak is in 2024 volledig vernieuwd en voldoet aan de huidige normen. Het energielabel C dateert van vóór deze dakvernieuwing.

Op de eerste verdieping bevinden zich twee slaapkamers en een luxe badkamer, uitgerust met een inloopdouche, modern badmeubel en een tweede toilet. De badkamer beschikt bovendien over een regelbare afzuigventilator en een geïntegreerde bergkast.

De zolderverdieping, verbouwd in 2025 biedt plaats aan een derde slaapkamer met dakkapel. Deze ruimte is voorzien van een airconditioning, ook uit 2025.

Ook buiten heeft deze woning veel te bieden. De ruime oprit biedt volop parkeergelegenheid voor meerdere auto's. De onderhoudsvriendelijke tuin is via een achterom bereikbaar. Daarnaast zijn er een inpandig bereikbare garage en een separate berging, ideaal voor tuinspullen en opslag. De garage is voorzien van een tegelvloer, automatische sectionaalpoort en witgoedaansluitingen.

Wahlwiller is een rustig en groen dorp, ideaal voor wie houdt van natuur en ontspanning. Uitvalswegen zijn snel bereikbaar en voor dagelijkse voorzieningen liggen Vaals, Gulpen en Simpelveld op slechts enkele minuten rijden. Wie op zoek is naar rust, zit in Wahlwiller helemaal goed.

Bijzonderheden:

  • Grotendeels kunststof kozijnen met HR++ dubbele beglazing
  • Slaapkamers voorzien van rolluiken
  • Spouwmuurisolatie
  • Moderne groepenkast
  • CV-ketel Atag 136EC (2018, eigendom)
  • Airconditioning op de begane grond en zolder
  • Slaapkamers voorzien van nieuw stucwerk en nieuwe plafonds
  • Serre met automatisch schuifdak, zonwering, schuifpui, vloerverwarming en pelletkachel

1. De waarborgsom/bankgarantie bedraagt 10% van de koopsom. De koper dient deze 1 week na het vervallen van de ontbindende voorwaarden bij de desbetreffende notaris te deponeren.

2. De koper is te allen tijde gerechtigd voor eigen rekening een bouwkundige (aankoop-)keuring te (laten) verrichten om zodoende een goed inzicht te verkrijgen in de actuele onderhoudstoestand van de onroerende zaak.

3. Rechtsgeldige koopovereenkomst pas ná ondertekening: Een mondelinge overeenstemming tussen de particuliere verkoper en de particuliere koper is niet rechtsgeldig. Er is pas sprake van een rechtsgeldige koop als de particuliere verkoper en de particuliere koper de koopovereenkomst hebben ondertekend.

4. Het maximale bedrag ontbindende voorwaarde financiering mag niet hoger dan de vraagprijs zijn.

5. De content is met de grootst mogelijke zorg samengesteld, en moet beschouwd worden als een uitnodiging om in onderhandeling te treden, en is geheel vrijblijvend! Doch we aanvaarden geen aansprakelijkheid ten aanzien van mogelijke onjuistheden.

6. Alle opgegeven maten en oppervlakten zijn indicatief

Reageer op tijd op nieuw woningaanbod

Meer dan de helft van de reacties komt binnen 48 uur. Ontvang direct notificaties bij nieuw aanbod en reageer sneller met Pararius+.

Probeer Pararius+ 14 dagen € 0,01

Overdracht

Vraagprijs
€ 359.000 k.k.
Aangeboden sinds
06-01-2026
Status
Beschikbaar
Beschikbaar
In overleg
Onderhoudsstaat
Zeer goed

Oppervlakte en inhoud

Woonoppervlakte
122 m²
Perceeloppervlakte
231 m²
Inhoud
473 m³

Bouw

Type woning
Huis
Soort woning
2-onder-1-kapwoning, Eengezinswoning
Soort bouw
Bestaande bouw
Bouwjaar
1966
Ligging
  • Aan een rustige weg
  • Landelijk gebied

Indeling

Aantal kamers
4
Aantal slaapkamers
3
Aantal badkamers
1
Aantal woonlagen
2
Voorzieningen
  • Alarm
  • Internetaansluiting
  • Buitenzonwering
  • Rolluiken
  • Rioolaansluiting
  • Douche
  • Schuifdeuren
  • Bergruimte
  • Toilet

Buitenruimte

Balkon
Niet aanwezig
Tuin
Aanwezig (36 m², gelegen op het oosten)
Achterom aanwezig
Aanwezig
Dakterras
Niet aanwezig

Energie

Isolatie
Spouwmuurisolatie, Dubbele beglazing, Dakisolatie
Verwarming
Pelletkachel
Cv-ketel
Atag (Gas, uit 2018, Eigendom)
Energielabel
C

Bergruimte

Schuur/Berging
Niet aanwezig

Parkeergelegenheid

Aanwezig
Ja
Soort parkeergelegenheid
Op eigen terrein

Garage

Aanwezig
Ja
Meld een probleem met deze woning