Contact met de makelaar

Deze woning is gevonden buiten ons eigen netwerk. Met de knop hieronder kom je direct bij de aanbieder terecht.

Nieuw

Dr W Dreesstraat 33

Bekijk kaart
3214 XG Zuidland (Kerckhoek)
€ 419.000 k.k.
  • 116 m²
  • 4 kamers
  • 1974

Samenvatting

  • Deze woning wordt sinds 13 februari 2026 aangeboden door LKW Makelaardij;
  • De tussenwoning heeft een woonoppervlakte van 116 m² en beschikt over 4 kamers, waarvan 3 slaapkamers;
  • De woning is gebouwd In 1974 en ligt in de buurt Kerckhoek in Zuidland.

Beschrijving

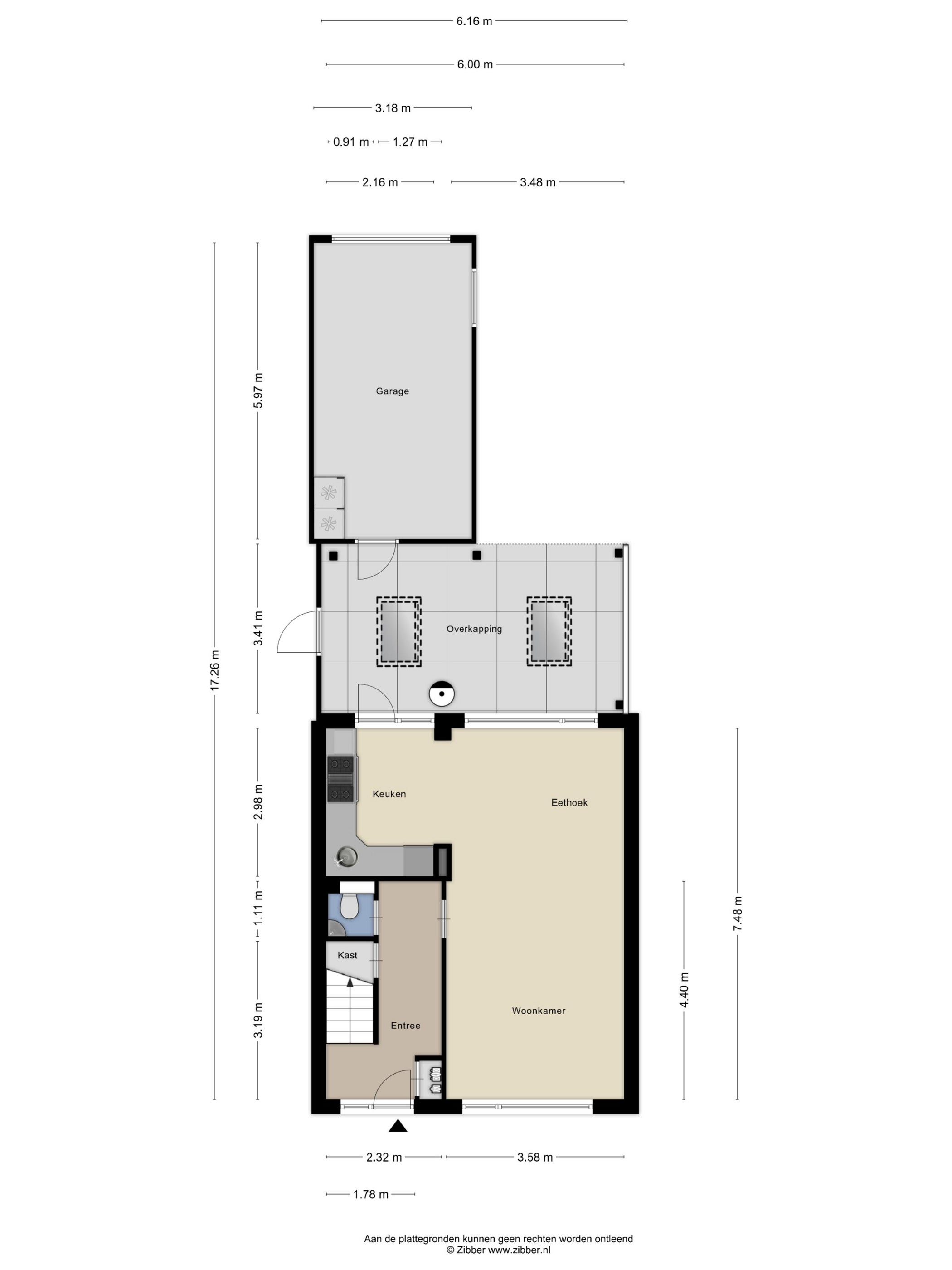
Dit beschikbare eengezinswoning, gelegen aan een rustige weg in een woonwijk, is gebouwd in 1974 en biedt een woonoppervlakte van 116 m² op een perceel van 152 m². Deze hoekwoning heeft drie woonlagen en beschikt over vier kamers, waaronder drie slaapkamers. De woning heeft een inhoud van 412 m³ en bevat externe bergruimte van 19 m² en een gebouwgebonden buitenruimte van 21 m².

De achtertuin, van 79 m² met een zuidoostligging, biedt toegang via een achterom. Er is tevens een voortuin. Voor parkeren is er een vrijstaande stenen garage voor één auto, inclusief elektra. De woning is energie-efficiënt met dakisolatie en een C.V.-ketel (gas combiketel uit 2022). De huidige eigendomssituatie is volle eigendom.

Overdracht

Vraagprijs
€ 419.000 k.k.
Prijs per m²
€ 3.612
Aangeboden sinds
13-02-2026
Status
Beschikbaar
Beschikbaar
Per direct

Oppervlakte en inhoud

Woonoppervlakte
116 m²
Perceeloppervlakte
152 m²

Bouw

Type woning
Huis
Soort woning
Tussenwoning (rijtjeshuis), Eengezinswoning
Soort bouw
Bestaande bouw
Bouwjaar
1974

Indeling

Aantal kamers
4
Aantal slaapkamers
3

Buitenruimte

Dakterras
Niet aanwezig

Energie

Energielabel
D
Meld een probleem met deze woning