Contact met de makelaar

Deze woning is gevonden buiten ons eigen netwerk. Met de knop hieronder kom je direct bij de aanbieder terecht.

Dorpsstraat

Bekijk kaart
1689 GC Zwaag (Zwaag - Buurt 30 06)
€ 650.000 k.k.
  • 123 m²
  • 4 kamers
  • 1950

Samenvatting

  • Deze woning wordt sinds 7 weken aangeboden door JASPERS - VAN DIEPEN Makelaars Taxateurs Adviseurs;
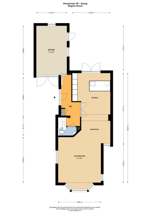
  • De tussenwoning heeft een woonoppervlakte van 123 m² en beschikt over 4 kamers, waarvan 3 slaapkamers;
  • De woning is gebouwd In 1950 en ligt in de buurt Zwaag - Buurt 30 06 in Zwaag.

Beschrijving

Overdracht

Vraagprijs
€ 650.000 k.k.
Aangeboden sinds
10-10-2025
Status
Beschikbaar
Beschikbaar
In overleg

Oppervlakte en inhoud

Woonoppervlakte
123 m²
Perceeloppervlakte
283 m²

Bouw

Type woning
Huis
Soort woning
Tussenwoning (rijtjeshuis), Eengezinswoning
Soort bouw
Bestaande bouw
Bouwjaar
1950

Indeling

Aantal kamers
4
Aantal slaapkamers
3
Aantal badkamers
1

Buitenruimte

Dakterras
Niet aanwezig

Energie

Energielabel
C
Meld een probleem met deze woning