- 171 m²
- 6 kamers
- 1975
Samenvatting
- Deze woning wordt sinds 25 oktober 2025 aangeboden door Rietveld Makelaars;
- De 2-onder-1-kapwoning heeft een woonoppervlakte van 171 m² en beschikt over 6 kamers, waarvan 5 slaapkamers;
- De woning is gebouwd In 1975 en ligt in de buurt Limmen Oost in Limmen;
- De woning beschikt onder andere over de volgende voorzieningen: Bad, Kabel TV, Dakkapel, Rookkanaal, Douche, Dakraam, Bergruimte, Toilet, Wasruimte.
Beschrijving
Meer woninginformatie bekijken?
Log in of registreer gratis.
Overdracht
- Vraagprijs
- € 850.000 k.k.
- Aangeboden sinds
- 25-10-2025
- Status
- Beschikbaar
- Beschikbaar
- In overleg
- Onderhoudsstaat
- Goed
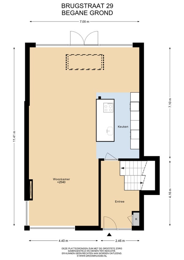
Oppervlakte en inhoud
- Woonoppervlakte
- 171 m²
- Perceeloppervlakte
- 462 m²
- Inhoud
- 790 m³
Bouw
- Type woning
- Huis
- Soort woning
- 2-onder-1-kapwoning, Eengezinswoning
- Soort bouw
- Bestaande bouw
- Bouwjaar
- 1975
- Ligging
-
- Aan een rustige weg
- Aan het water
- In een woonwijk
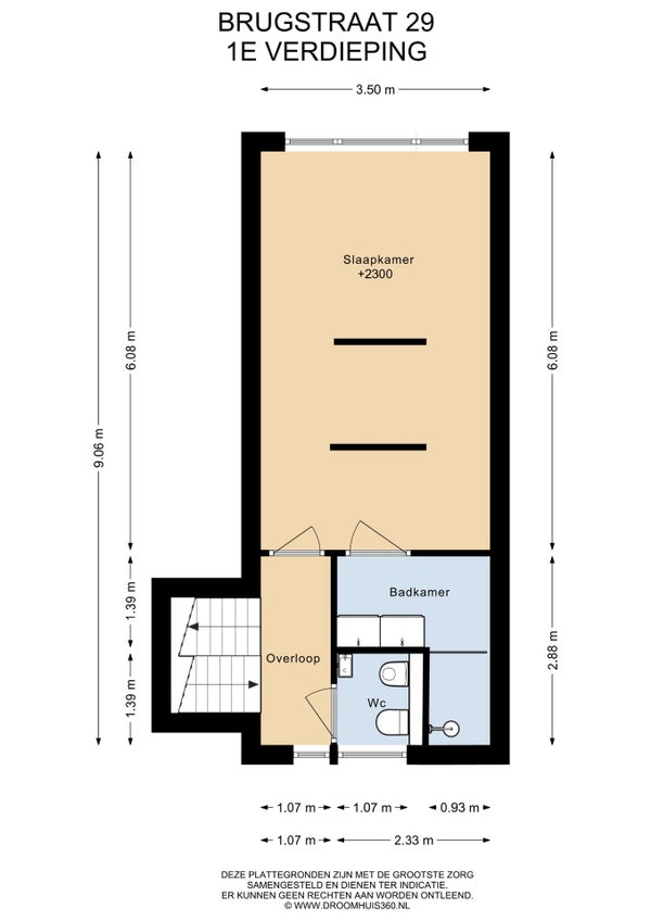
Indeling
- Aantal kamers
- 6
- Aantal slaapkamers
- 5
- Aantal badkamers
- 2
- Aantal woonlagen
- 5
- Voorzieningen
-
- Bad
- Kabel TV
- Dakkapel
- Rookkanaal
- Douche
- Dakraam
- Bergruimte
- Toilet
- Wasruimte
Buitenruimte
- Balkon
- Niet aanwezig
- Tuin
- Aanwezig (188 m², gelegen op het oosten)
- Tuinbeschrijving
- achtertuin, voortuin, zijtuin
- Dakterras
- Niet aanwezig
Energie
- Isolatie
- Vloerisolatie, HR glas, Dakisolatie, Muurisolatie
- Verwarming
- CV-ketel, Houtkachel
- Warm water
- CV-ketel
- Cv-ketel
- Remeha Calenta 40C (Gas, uit 2013, Eigendom)
- Energielabel
- C
Parkeergelegenheid
- Aanwezig
- Ja
- Soort parkeergelegenheid
- Op eigen terrein
Garage
- Aanwezig
- Ja
- Omschrijving
- Inpandig