Contact met de makelaar

Deze woning is gevonden buiten ons eigen netwerk. Met de knop hieronder kom je direct bij de aanbieder terecht.

Nieuw

Zandburen 23

Bekijk kaart
1777 CP Hippolytushoef (Hippolytushoef Centrum (woonkern))
€ 252.500 k.k.
  • 75 m²
  • 4 kamers
  • 1959

Samenvatting

  • Deze woning wordt sinds 31 oktober 2025 aangeboden door Vonder Makelaardij;
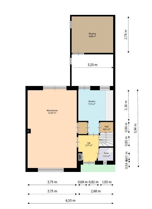
  • De tussenwoning heeft een woonoppervlakte van 75 m² en beschikt over 4 kamers, waarvan 3 slaapkamers;
  • De woning is gebouwd In 1959 en ligt in de buurt Hippolytushoef Centrum (woonkern) in Hippolytushoef;
  • De woning beschikt onder andere over de volgende voorzieningen: Kabel TV, Rookkanaal, Internetaansluiting, Douche, Dakraam, Bergruimte, Toilet.

Beschrijving

Meer woninginformatie bekijken?

Log in of registreer gratis.

Overdracht

Vraagprijs
€ 252.500 k.k.
Aangeboden sinds
31-10-2025
Status
Beschikbaar
Beschikbaar
In overleg
Onderhoudsstaat
Goed

Oppervlakte en inhoud

Woonoppervlakte
75 m²
Perceeloppervlakte
220 m²
Inhoud
300 m³

Bouw

Type woning
Huis
Soort woning
Tussenwoning (rijtjeshuis), Eengezinswoning
Soort bouw
Bestaande bouw
Bouwjaar
1959
Ligging
  • In een woonwijk
  • Nabij het openbaar vervoer
  • Nabij een school
  • Vrij uitzicht

Indeling

Aantal kamers
4
Aantal slaapkamers
3
Aantal badkamers
1
Aantal woonlagen
3
Voorzieningen
  • Kabel TV
  • Rookkanaal
  • Internetaansluiting
  • Douche
  • Dakraam
  • Bergruimte
  • Toilet

Buitenruimte

Balkon
Niet aanwezig
Tuin
Aanwezig (140 m², gelegen op het oosten)
Tuinbeschrijving
achtertuin
Dakterras
Niet aanwezig

Energie

Isolatie
Muurisolatie
Verwarming
CV-ketel
Warm water
CV-ketel
Cv-ketel
Vaillant EcoTec Classic (Gas, uit 2015, Eigendom)
Energielabel
D

Bergruimte

Schuur/Berging
Aanwezig

Parkeergelegenheid

Aanwezig
Ja
Soort parkeergelegenheid
Openbaar
Meld een probleem met deze woning
Contact met de makelaar Bel