Contact met de makelaar

Deze woning is gevonden buiten ons eigen netwerk. Met de knop hieronder kom je direct bij de aanbieder terecht.

Nieuw

Mildenburg 57

Bekijk kaart
3328 JG Dordrecht (Mildenburg en omgeving)
€ 400.000 k.k.
  • 135 m²
  • 6 kamers
  • 1976

Samenvatting

  • Deze woning wordt sinds 24 oktober 2025 aangeboden door Advema Makelaardij;
  • De tussenwoning heeft een woonoppervlakte van 135 m² en beschikt over 6 kamers, waarvan 5 slaapkamers;
  • De woning is gebouwd In 1976 en ligt in de buurt Mildenburg en omgeving in Dordrecht;
  • De woning beschikt onder andere over de volgende voorzieningen: Glasvezelaansluiting, Mechanische ventilatie, Buitenzonwering, Douche, Bergruimte, Toilet.

Beschrijving

Overdracht

Vraagprijs
€ 400.000 k.k.
Aangeboden sinds
24-10-2025
Status
Beschikbaar
Beschikbaar
In overleg
Onderhoudsstaat
Goed

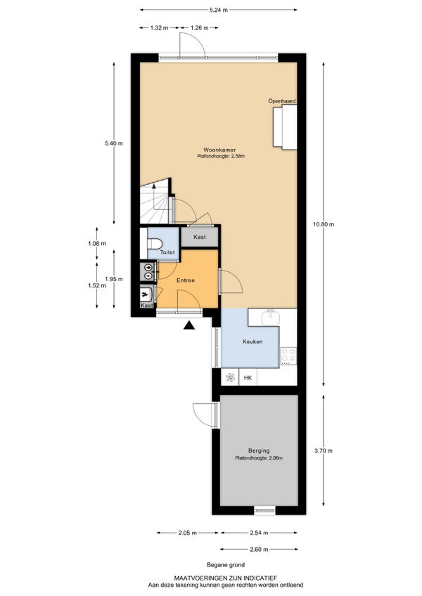
Oppervlakte en inhoud

Woonoppervlakte
135 m²
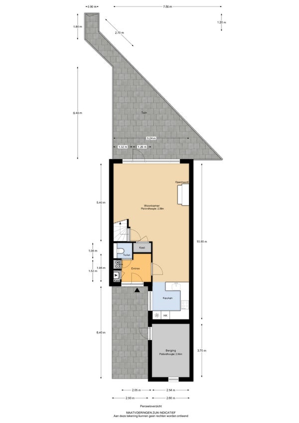
Perceeloppervlakte
119 m²
Inhoud
518 m³

Bouw

Type woning
Huis
Soort woning
Tussenwoning (rijtjeshuis), Eengezinswoning
Soort bouw
Bestaande bouw
Bouwjaar
1976
Ligging
  • Aan een rustige weg
  • In een woonwijk
  • Beschut gelegen

Indeling

Aantal kamers
6
Aantal slaapkamers
5
Aantal badkamers
2
Aantal woonlagen
3
Voorzieningen
  • Glasvezelaansluiting
  • Mechanische ventilatie
  • Buitenzonwering
  • Douche
  • Bergruimte
  • Toilet

Buitenruimte

Balkon
Niet aanwezig
Tuin
Aanwezig (28 m², gelegen op het westen)
Tuinbeschrijving
achtertuin, voortuin
Dakterras
Niet aanwezig

Energie

Isolatie
Dubbele beglazing, Vloerisolatie, Dakisolatie
Verwarming
CV-ketel, Gedeeltelijke vloerverwarming
Warm water
CV-ketel
Cv-ketel
Vaillant (Gas, uit 2025, Eigendom)
Energielabel
B

Bergruimte

Schuur/Berging
Aanwezig
Omschrijving
Aangebouwd steen

Parkeergelegenheid

Aanwezig
Ja
Soort parkeergelegenheid
Openbaar

Garage

Aanwezig
Nee
Meld een probleem met deze woning
Contact met de makelaar Bel