- 199 m²
- 6 kamers
- 1900
Samenvatting
- Deze woning wordt sinds 30 oktober 2025 aangeboden door Makelaar1;
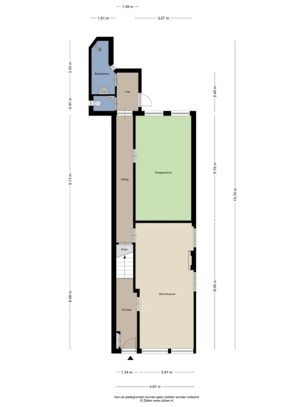
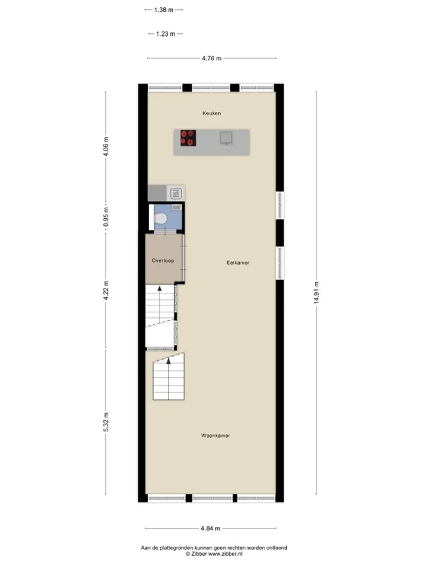
- De galerijflat heeft een woonoppervlakte van 199 m² en beschikt over 6 kamers, waarvan 4 slaapkamers;
- De woning is gebouwd In 1900 en ligt in de buurt Binnenstad in Harlingen.
Beschrijving
Overdracht
- Vraagprijs
- € 765.000 k.k.
- Aangeboden sinds
- 30-10-2025
- Status
- Beschikbaar
- Beschikbaar
- In overleg
Oppervlakte en inhoud
- Woonoppervlakte
- 199 m²
- Perceeloppervlakte
- 142 m²
Bouw
- Type woning
- Appartement
- Soort woning
- Galerijflat
- Soort bouw
- Bestaande bouw
- Bouwjaar
- 1900
Indeling
- Aantal kamers
- 6
- Aantal slaapkamers
- 4
- Aantal badkamers
- 2
Buitenruimte
- Dakterras
- Niet aanwezig
Energie
- Energielabel
- C
 
                 
                 
                 
                 
                 
                 
                 
                 
                 
                 
                 
                 
                 
                 
                 
                 
                 
                 
                 
                 
                 
                 
                 
                 
                 
                 
                 
                 
                 
                 
                 
                 
                 
                 
                 
                 
                 
                 
                 
                 
                 
                 
                 
                 
                 
                 
                 
                 
                 
                 
                 
                 
                 
                 
                 
                 
                 
                 
                 
                 
                 
                 
                 
                