Contact met de makelaar

Deze woning is gevonden buiten ons eigen netwerk. Met de knop hieronder kom je direct bij de aanbieder terecht.

Nieuw

Emmastraat

Bekijk kaart
5951 BH Belfeld (Kern Belfeld)
€ 350.000 k.k.
  • 99 m²
  • 4 kamers
  • 1965

Samenvatting

  • Deze woning wordt sinds 31 oktober 2025 aangeboden door Hauzer & Partners;
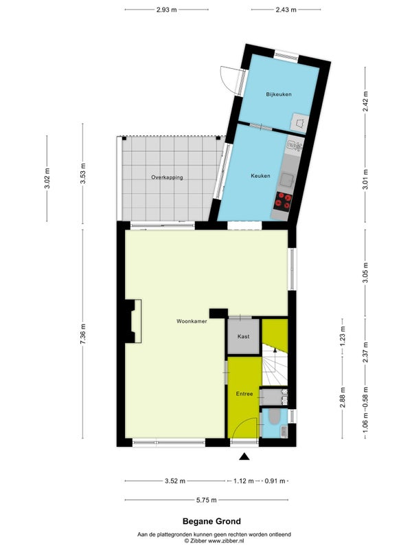
  • De tussenwoning heeft een woonoppervlakte van 99 m² en beschikt over 4 kamers, waarvan 3 slaapkamers;
  • De woning is gebouwd In 1965 en ligt in de buurt Kern Belfeld in Belfeld.

Beschrijving

Meer woninginformatie bekijken?

Log in of registreer gratis.

Overdracht

Vraagprijs
€ 350.000 k.k.
Aangeboden sinds
31-10-2025
Status
Beschikbaar
Beschikbaar
In overleg

Oppervlakte en inhoud

Woonoppervlakte
99 m²
Perceeloppervlakte
313 m²

Bouw

Type woning
Huis
Soort woning
Tussenwoning (rijtjeshuis), Eengezinswoning
Soort bouw
Bestaande bouw
Bouwjaar
1965

Indeling

Aantal kamers
4
Aantal slaapkamers
3
Aantal badkamers
1

Buitenruimte

Dakterras
Niet aanwezig

Energie

Energielabel
D
Meld een probleem met deze woning