Contact met de makelaar

Deze woning is gevonden buiten ons eigen netwerk. Met de knop hieronder kom je direct bij de aanbieder terecht.

Nieuw

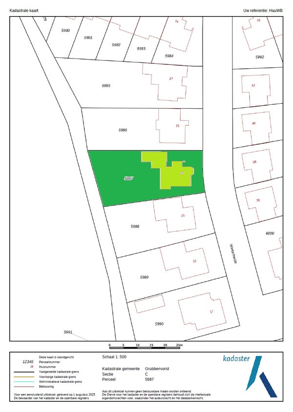
Winterheide

Bekijk kaart
5971 GD Grubbenvorst (Middelreuvelt)
€ 719.000 k.k.
  • 198 m²
  • 8 kamers
  • 2001

Samenvatting

  • Deze woning wordt sinds 31 oktober 2025 aangeboden door Hauzer & Partners;
  • De tussenwoning heeft een woonoppervlakte van 198 m² en beschikt over 8 kamers, waarvan 5 slaapkamers;
  • De woning is gebouwd In 2001 en ligt in de buurt Middelreuvelt in Grubbenvorst.

Beschrijving

Meer woninginformatie bekijken?

Log in of registreer gratis.

Overdracht

Vraagprijs
€ 719.000 k.k.
Aangeboden sinds
31-10-2025
Status
Beschikbaar
Beschikbaar
In overleg

Oppervlakte en inhoud

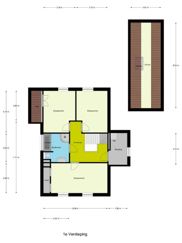
Woonoppervlakte
198 m²
Perceeloppervlakte
689 m²

Bouw

Type woning
Huis
Soort woning
Tussenwoning (rijtjeshuis), Eengezinswoning
Soort bouw
Bestaande bouw
Bouwjaar
2001

Indeling

Aantal kamers
8
Aantal slaapkamers
5
Aantal badkamers
2

Buitenruimte

Dakterras
Niet aanwezig

Energie

Energielabel
A
Meld een probleem met deze woning