Te huur: Appartement De Bosuil in Amersfoort
Bekijk kaart- 88 m²
- 3 kamers
- 2020
Exclusief voor jou
Deze woning is voor jou beschikbaar via je persoonlijke notificatie en verschijnt niet in de zoekresultaten.
Beschrijving
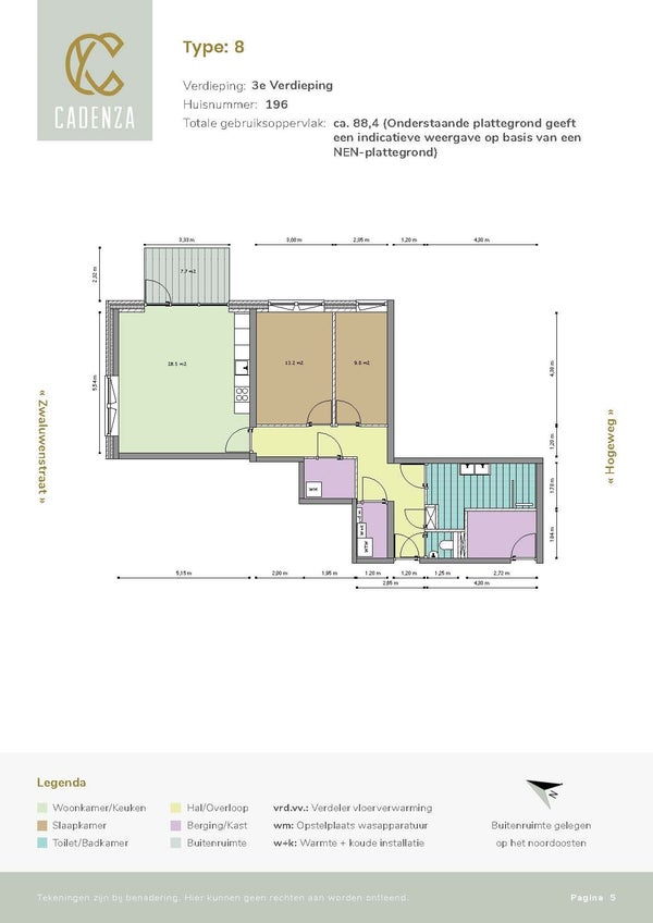
Per 1 februari 2026 is er een 3-kamer appartement beschikbaar op de 3e verdieping van het indrukwekkende complex Cadenza in het nieuwe Hogekwartier in Amersfoort. Dit appartement heeft een woonoppervlakte van 88 m2 en beschikt over twee slaapkamers. Vanaf het balkon met noordoostelijke ligging heeft u een prachtig uitzicht. Er is ook een parkeerplaats en het appartement heeft energielabel A, wat duidt op energiezuinig wonen. De woning is van 2020 en is voorzien van moderne inbouwapparatuur zoals een inductiekookplaat en een vaatwasser. Hier bevinden zich ook een moderne badkamer en aparte toiletruimte. De omgeving is gemoderniseerd en biedt snelle toegang tot het stadscentrum en hoofdwegen. Daarnaast zijn er duurzame voorzieningen zoals zonnepanelen en vloerverwarming.
Overdracht
- Huurprijs
-
€ 1.323 per maand
- Aangeboden sinds
- 04-12-2025
- Status
- Te huur
- Beschikbaar
- Per direct
Oppervlakte en inhoud
- Woonoppervlakte
- 88 m²
Bouw
- Type woning
- Appartement
- Soort woning
- Galerijflat
- Soort bouw
- Bestaande bouw
- Bouwjaar
- 2020
Indeling
- Aantal kamers
- 3
- Aantal slaapkamers
- 2
- Aantal badkamers
- 1
Buitenruimte
- Dakterras
- Niet aanwezig
Energie
- Energielabel
- A
Huurvoorwaarden
- Doelgroep
- Werkende