Woning verhuren

Contact met de makelaar

Deze woning is gevonden buiten ons eigen netwerk. Met de knop hieronder kom je direct bij de aanbieder terecht.

Nieuw

Te huur: Appartement Haya van Somerenlaan in Amstelveen

Bekijk kaart
1187 RB (Betsy Perkbuurt)
€ 1.711 per maand
  • 93 m²
  • 3 kamers
  • 1991

Exclusief voor jou

Deze woning is voor jou beschikbaar via je persoonlijke notificatie en verschijnt niet in de zoekresultaten.

Beschrijving

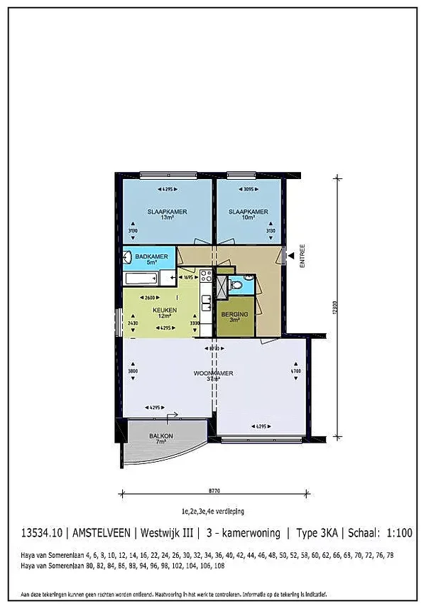
Wonen in het comfortabele 3-kamerappartement van 93 m² in Westwijk III, gelegen in de groene wijk Westwijk in Amstelveen. De lichte woonkamer van ongeveer 37 m² biedt ruimte voor een zithoek en eettafel, met directe toegang tot het balkon. De keuken van circa 12 m² is volledig uitgerust met inbouwapparatuur, ideaal voor het koken. Er zijn twee slaapkamers, de grootste is 13 m² en de tweede, 10 m², kan als werkruimte dienen. De badkamer beschikt over een ligbad, douche en wastafel. Verder is er een aparte berging met aansluitingen voor een wasmachine en droger. Gelegen in een rustige buurt met winkels, het Cobra Museum en het Amsterdamse Bos dichtbij, perfect voor ontspanning.

Overdracht

Huurprijs
€ 1.711 per maand
Aangeboden sinds
17-12-2025
Status
Te huur
Beschikbaar
Per 01-01-2026

Oppervlakte en inhoud

Woonoppervlakte
93 m²

Bouw

Type woning
Appartement
Soort woning
Galerijflat
Soort bouw
Bestaande bouw
Bouwjaar
1991

Indeling

Aantal kamers
3
Aantal slaapkamers
2
Aantal badkamers
1

Buitenruimte

Dakterras
Niet aanwezig

Energie

Energielabel
B

Huurvoorwaarden

Doelgroep
Werkende
Meld een probleem met deze woning