Woning verhuren

Contact met de makelaar

Deze woning is gevonden buiten ons eigen netwerk. Met de knop hieronder kom je direct bij de aanbieder terecht.

Nieuw

Te huur: Appartement Burgemeester Rijnderslaan in Amstelveen

Bekijk kaart
1185 MC (Van der Leekbuurt)
€ 1.945 per maand
  • 102 m²
  • 4 kamers
  • 1990

Exclusief voor jou

Deze woning is voor jou beschikbaar via je persoonlijke notificatie en verschijnt niet in de zoekresultaten.

Beschrijving

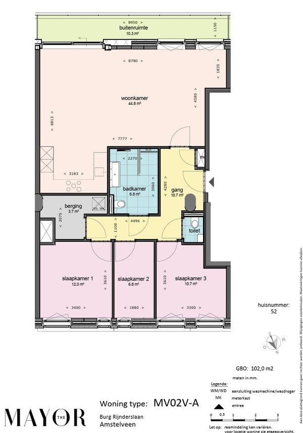
Dit royale vierkamerappartement van ca. 102 m² ligt op de eerste verdieping en is perfect gelegen. Het appartement biedt volop mogelijkheden; de indeling van de kamers kan naar wens worden aangepast, of je nu een extra slaapkamer, studeerkamer of hobbyruimte wilt. Verwarming geschiedt via vloerverwarming, waardoor er geen radiatoren in de weg staan. De moderne keuken is volledig uitgerust met Siemens-apparatuur en heeft een strakke uitstraling door de witte Corpus kasten en het zwarte composieten werkblad. De luxe badkamer, bereikbaar vanuit de hal, heeft een inloopdouche, dubbele wastafel en toilet. Bovendien is er een balkon van ca. 10 m² op het zuiden. Het appartement wordt verhuurd met een eigen parkeerplaats en berging.

Overdracht

Huurprijs
€ 1.945 per maand
Aangeboden sinds
04-12-2025
Status
Te huur
Beschikbaar
Per direct

Oppervlakte en inhoud

Woonoppervlakte
102 m²

Bouw

Type woning
Appartement
Soort woning
Galerijflat
Soort bouw
Bestaande bouw
Bouwjaar
1990

Indeling

Aantal kamers
4
Aantal slaapkamers
3
Aantal badkamers
1

Buitenruimte

Dakterras
Niet aanwezig

Energie

Energielabel
A+

Huurvoorwaarden

Doelgroep
Werkende
Meld een probleem met deze woning