Niet beschikbaar

De woning die je wilt bekijken is niet langer beschikbaar. Je bekijkt nu het woningaanbod in dezelfde stad.

Woning verhuren

Contact met de aanbieder

Deze woning is gevonden buiten ons eigen netwerk. Via de knop hieronder ga je direct naar de website van de aanbieder.

Nieuw

Te huur: Appartement John Blankensteinstraat in Amsterdam

Bekijk kaart
1095 MB (Zeeburgereiland/Bovendiep)
€ 2.500 per maand
  • 75 m²
  • 4 kamers
  • Gemeubileerd

Beschrijving

Maisonnette met 3 Slaapkamers in Stadsdeel Oost

Wij bieden deze dubbele benedenwoning aan op Zeeburgereiland, gelegen aan de rustige John Blankensteinstraat. Deze gestoffeerde woning met drie slaapkamers is in 2020 opgeleverd en biedt alle gemakken van een moderne en duurzame nieuwbouwwoning. De woning is volledig geïsoleerd en beschikt over vloerverwarming door de hele woning, wat zorgt voor extra comfort.

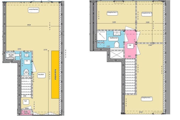
Indeling:

  • Begane grond:

  • Ruime en lichte woonkamer met grote ramen die veel natuurlijk licht binnenlaten.

  • Moderne open keuken, voorzien van een stijlvol keukenblok met hoogwaardige inbouwapparatuur.

  • Separate toiletruimte in de hal en een handige berging voor extra opslag.

  • Eerste verdieping:

  • Drie slaapkamers, ideaal voor gezinnen of woningdelers. Elke slaapkamer is voorzien van grote ramen, waardoor de kamers veel daglicht krijgen.

  • Badkamer met inloopdouche, wastafel en tweede toilet.

  • In de badkamer is ruimte voor een wasmachine en droger.

Ligging:
Het appartement is gelegen aan de John Blankensteinstraat, parallel aan de Zuider IJdijk, in de jonge en levendige Sportheldenbuurt op Zeeburgereiland, onderdeel van Stadsdeel Oost. Deze locatie biedt een perfecte combinatie van rust en toegang tot alle nieuwe Amsterdamse hotspots en culturele voorzieningen. Scholen, supermarkten, winkels en horecagelegenheden zoals Kaap Amsterdam, Hangar, Kokomo, Baggerbeest en Haddock liggen allemaal op loop- of fietsafstand. Voor uw dagelijkse boodschappen kunt u terecht bij de Albert Heijn supermarkten aan de Eef Kamerbeekstraat, of Landmarkt.

Daarnaast ligt het appartement vlakbij recreatieplekken zoals het grootste skatepark van Europa en strand Blijburg, dat binnen 10 minuten fietsen te bereiken is. Voor liefhebbers van natuur biedt de nabijgelegen idyllische dorpjes zoals Holysloot, Zunderdorp en Ransdorp prachtige fietsroutes.

Bereikbaarheid:
Het appartement op Zeeburgereiland is uitstekend bereikbaar met de auto. Het eiland is verbonden met de stad en omliggende gebieden via twee tunnels en drie bruggen, waardoor u snel toegang heeft tot zowel het centrum van Amsterdam als de rest van de regio. Bovendien ligt het appartement direct onder de afslag van de A10, de ringweg van Amsterdam, wat zorgt voor snelle verbindingen met de randstad. Dit maakt het ideaal voor forenzen of iedereen die regelmatig met de auto reist.

Parkeren:
Betaald parkeren is beschikbaar op straat in de buurt van het appartement. Verder zijn er mogelijkheden om een vaste parkeerplek te huren in nabijgelegen parkeergarages.

• Tram 26 stopt praktisch voor de deur en brengt u binnen 10 minuten naar het centrum van Amsterdam.
• Voor fietsers is de Zuiderzeewegbrug een snelle route naar de Indische Buurt, en vanaf 2023 biedt een fietspont een directe verbinding naar de Oostelijke Eilanden en het centrum van Amsterdam.
• Bus 37 biedt een directe verbinding naar Amsterdam Amstel en Noord Station.

Bijzonderheden:
• Het appartement wordt semi-gemeubileerd opgeleverd.
• Nieuwbouwappartement (opgeleverd in 2020) met luxe keuken en inbouwapparatuur.
• Duurzaam gebouwd en volledig geïsoleerd met energielabel A.
• Vloerverwarming door de gehele woning.
• Huurcontract: Tijdelijke verhuur mogelijk op basis van de Leegstandswet (met een minimale duur van 12 maanden).
• Maximaal twee woningdelers toegestaan.
• Huisdieren en feestjes zijn niet toegestaan.
• Oplevering in overleg, verhuurder behoudt zich het recht van gunning voor.

Inkomenseis:
Wij vragen een minimaal gezamenlijk bruto-inkomen van 4 keer de maandhuur, waarbij ieder individu minimaal 1,5 keer de maandhuur moet verdienen, en bij voorkeur een vast contract heeft. In sommige gevallen kan een hogere borg of garantstelling worden gevraagd.

Disclaimer:
Deze informatie is met zorg samengesteld, maar wij aanvaarden geen aansprakelijkheid voor eventuele onjuistheden of onvolledigheden. Alle opgegeven maten en oppervlakten zijn slechts indicatief. De huurder heeft de mogelijkheid om zelf een NEN 2580 meting uit te laten voeren.

Overdracht

Huurprijs
€ 2.500 per maand
Prijs per m²
€ 33
Aangeboden sinds
01-03-2026
Status
Te huur
Beschikbaar
In overleg
Interieur
Gemeubileerd
Onderhoudsstaat
Zeer goed

Oppervlakte en inhoud

Woonoppervlakte
75 m²
Perceeloppervlakte
72 m²
Inhoud
250 m³

Bouw

Type woning
Appartement
Soort woning
Benedenwoning, Appartement
Soort bouw
Bestaande bouw
Bouwjaar
2020

Indeling

Aantal kamers
4
Aantal slaapkamers
3
Aantal badkamers
1
Aantal woonlagen
2
Voorzieningen
  • Mechanische ventilatie
  • Douche
  • Toilet

Buitenruimte

Balkon
Niet aanwezig
Tuin
Niet aanwezig
Dakterras
Niet aanwezig

Energie

Verwarming
Volledige vloerverwarming
Energielabel
A+

Parkeergelegenheid

Aanwezig
Ja
Soort parkeergelegenheid
Betaald

Garage

Aanwezig
Nee
Meld een probleem met deze woning