Woning verhuren

Contact met de aanbieder

Deze woning is gevonden buiten ons eigen netwerk. Via de knop hieronder ga je direct naar de website van de aanbieder.

Te huur: Appartement Laan van Roos en Doorn in Den Haag

Bekijk kaart
2514 BC (Willemspark)
€ 2.295 per maand
  • 98 m²
  • 3 kamers
  • Gemeubileerd

Beschrijving

Recent gerenoveerd appartement op de begane grond met 2 slaapkamers en aparte bergruimte, gelegen in het centrum van de stad. Gelegen in de populaire wijk 2005, op enkele minuten van de Denneweg en Frederikstraat met hun leuke winkels en restaurants, maar toch in een rustige straat. Het openbaar vervoer naar de treinstations en het strand is nabij.

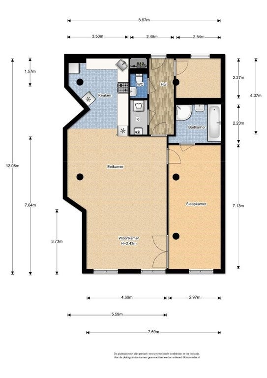
Indeling
Goed onderhouden gezamenlijke entree met bellen en brievenbussen, hal, entree appartement, hal, kleine slaapkamer, toilet en kast met wasmachine, droger en stadsverwarmingssysteem. Ruime woon-/eetkamer met open keuken, volledig uitgerust, grote slaapkamer met ensuite badkamer met bad en douche. Tweede slaapkamer kan worden gebruikt als werk- of gastenkamer. In de kelder is een private opslagruimte en gemeenschappelijke fietsenstalling.

Belangrijke aspecten

  • Gemeubileerd
  • Goed onderhouden
  • Externe opslag
  • Veilige appartementencomplex
  • Laminaatvloer

Huurprijs €2295,- exclusief nutsvoorzieningen - Gemeubileerd

Overdracht

Huurprijs
€ 2.295 per maand
  • Inclusief: Servicekosten
Aangeboden sinds
17-11-2025
Status
Te huur
Beschikbaar
In overleg
Borg
€ 2.295
Interieur
Gemeubileerd

Oppervlakte en inhoud

Woonoppervlakte
98 m²
Inhoud
275 m³

Bouw

Type woning
Appartement
Soort woning
Bovenwoning
Soort bouw
Bestaande bouw
Bouwjaar
2000
Ligging
In een woonwijk

Indeling

Aantal kamers
3
Aantal slaapkamers
2
Aantal badkamers
1
Aantal woonlagen
1
Voorzieningen
Toilet

Buitenruimte

Balkon
Niet aanwezig
Dakterras
Niet aanwezig

Energie

Energielabel
A
Meld een probleem met deze woning